目录
1.定义与组成 2.功能段介绍 3.选型与故障应对
4.维护及保养
定义与组成
MAU(Make-up Air Unit)
“

地位:净化空调箱是无尘室空调系统的核心。
◆满足FAB内人员对新风的需求;——Q1
◆补充排气风量;——Q2
◆维持FAB正压;——Q3
◆调节洁净室空气湿度。
MAU空调箱主要特点是处理风量大,并且由于外气在不同季节温湿度差异大,相应的能量、加湿量、风机静压都很大。若设备处理能量达不到设计要求将对室内温湿度、车间的压力产生较大影响。
通常MAU与FFU、DCC搭配组合来保证洁净室环境条件:
这种搭配(MAU+FFU+DCC)通常在洁净度要求较高的空调系统中才会使用。
【通常是千级或以上的电子厂房】

三者的大致功能大致如下:
MAU:主要提供洁净室一定温湿度和洁净度的空气,维持室洁净室内正压。
FFU:主要负责洁净室空气的进一步净化,维持洁净度。
DCC:主要负责精确调节洁净室内温度。
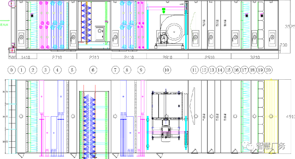
MAU的组成
一般情况下,常规的净化空调箱MAU设备的功能段约有13~20个段,具体的配置根据工艺生产车间的环境需求具体情况而定。

如对洁净室AMC,氮硫化物、VOC、等有害有机挥发性化合物的含量有特定要求,则需要根据环境需求配置化学过滤器(具体如下图所示)。

功能段介绍
“
各功能段参数简介

1.卷绕式过滤:大气尘计数效率:≥35%(≥5μm)
2.初效过滤:效率G4 大气尘计数效率:≥80%(≥5μm)
3.中效过滤:效率F8 大气尘计数效率:≥85%(≥1μm)
4.预热盘管:进风参数:tdb=1.7 °C 出风参数:tdb =28 °C
5.一级表冷:进风参数:tdb=38.7 °C,twb=29.1 °C 出风参数:tdb =17 °C,twb =16.5 °C
6.水洗加湿:淋水室加湿有效加湿量629kg/h(12万CMH),加湿介质 RO水 加湿效率≥95% 带挡水板 进/出风含湿量(g/kg)3.09/7.45
7.二级表冷:进风参数:tdb=17 °Ctwb=16.5 °C 出风参数:tdb =9.8 °C,tdb =9.4 °C
8.二级加热:进风参数:tdb=9.5 °C 出风参数:tdb =22°C
9.风 机 段:有关防微振要求的直联变频离心风机 送风量120,000m3/h 机组出口余压900Pa 风机效率80% 电机功率160kW 变频电机 风机自动变频
10.高效过滤:H13 W组合式 DOP效率: ≥99.97%(@0.3μm)
1
过滤段



在空调机组中,由不同过滤级别过滤器组成多级过滤系统,过滤器主要的作用是过滤室外空气的灰尘颗粒物、氮硫化物、VOC、AMC等有害有机挥发性化合物。
空气过滤器规格中的G,F,H,U是等级的划分,确切来说是根据欧标的等级划分。空气过滤器不同的国家有不同标准,我国国家标准分为初效过滤器,中效过滤器,高效过滤器三个等级,欧洲标准分为G、F、H、U四个等级。U是指超高效;H是普通高效;F是中效;G则对应的是初效。(如下图所示)

洁净室颗粒度标准
洁净区(室)的分级概念首先由美国提出,1963年推出了洁净室第一个军用部分的联邦标准:FS-209。我们熟悉的百级、万级、十万级都是源自此标准,2001年美国停止使用FS-209E标准,开始使用ISO标准。
(如下图所示)
2
盘管段


各盘管的作用:
对空气/外气的加热、冷却、除湿用盘管来实现。其方式是通过铜管翅片与空气换热,进而对空气加热(或降温、除湿);因此盘管是处理机组的核心部件之一。

预热盘管:加热外气,提升外气温度;
预冷盘管:冷却外气,降低外气温度;
再冷盘管:降低空气的温度和湿度;
再热盘管:夏季深度除湿,送风温度过低时进行升温补偿;冬季外气温度较低,外气先经过预热再水洗加湿,新风温度略有降低,空气通过再热盘管升温控制送风温度,避免较低温度的空气送入洁净室。
3
风机段


风机段主要作用是提供动力,输送空气到房间。对于不同的送风量要求可以通过变频方式实现。
风机基座下部安装弹簧避震器,风机出风口安装帆布,起到缓震作用,变频电机带强冷散热风扇,独立接电源,防止电机降频后温度上升。
风机一般根据需求的风量和压力选型,空调箱用风机一般为双吸离心式风机,分前倾式和后倾式(包括翼截式)、直联式风机,一般总静压在750Pa以下采前倾式。本项目采用的是直联式风机。
4
加湿段


常见的加湿器形式有:
1.水洗加湿器
2.高压微雾加湿器
3.湿膜加湿器
4.电极、电热加湿器
5.干蒸汽加湿器等

适用范围:
适用于大风量工况,加湿量大,系统可靠性与加湿洁净度要求较高的场合。在中大型MAU项目中广泛应用。
工作原理:
空气流经前挡水板均流后进入喷淋室后流经喷水排管,与喷嘴中喷出的水滴相接触进行热湿交换,可同时实现加湿、水洗空气、调节空气温功能,被水清洗后,空气经后挡水板滤水流出。
优势亮点:
对比其他加湿方式,喷淋加湿运行费用经济性显著。且过渡季节可不开启主机,仅使用喷淋实现温度调节。
水洗空气,减少空气中固体(灰尘或粉尘)的含量和有害气体(二氧化硫,硫化氢,氨类,苯类)的含量; 消除静电;
运行稳定性好,可靠性强,结构刚性好。

“
选型与故障应对措施


要想学会MAU选型,首先要要掌握的是焓湿图
简单介绍如下:
焓湿图:也叫h-d图,表示空气各参数之间关系的线图。焓湿图就像一本字典,你可以根据拼音(某一参数)查字(空气其他参数)。
空气的部分参数:
干球温度Tdb:简称温度,就是平常用温度计量的温度。
湿球温度RH:同等焓值空气状态下,空气中水蒸气达到饱和时的空气温度。
露点温度Tdp:空气在水汽含量和气压都不改变的条件下,冷却到饱和时的温度。(空气中的水蒸气变为露珠时候的温度。)
含湿量(g/kg):湿空气中与一千克干空气同时并存的水蒸气的质量。湿空气可以分为干空气和水蒸气。
相对湿度(%):相同温度下,空气中水汽压与饱和水汽压的百分比。
热湿比h/d:焓的变化(△h)和含湿量的变化(△d)的比值。热量和含湿量两者的变化值的比值。
1.夏季工况:
初效过滤中—预冷除湿—再冷除湿—再热升温—风机输送—高效过滤—送风




说明:夏季外气高温高湿,为满足房间设定的温湿度要求,须同时保证降温和除湿的能力达到要求,可通过冷水盘管满足要求,一般首先保证房间湿度要求,这要求空调箱再冷盘管的离风温度达到房间条件的露点温度要求,即除湿后的空气绝对含水量等于或小于房间含水量,根据这个要求来计算空调箱冷却能力。由于满足除湿造成送风温度过低,则须要再热盘管适当升温至房间干球温度。





2.冬季工况:
初中效过滤—预热盘管—水洗加湿—再热盘管—风机输送—高效过滤—送风




说明:冬季外气低温低湿,为满足房间设定的温湿度要求,须同时保证升温和加湿 的能力达到要求,可通过加热盘管和加湿设备满足要求。水加湿由于是等焓降温过程,要求预热量较大,预热量须能够使空气经过等焓加湿后达到房间空气露点要求。由于水加湿后湿度较大,温度降低,须通过再热盘管加热升温至房间温度要求。
盘管的计算:












常见故障及应对措施






运维与保养
MAU日常点检常用模板如下:




(部分内容参考示意图)

