
-
管道支、吊架安装 -
管道加工 -
管道布置 -
管道安装 -
套管及附件安装 -
阀门安装 -
管道试压 -
管道清洗 -
水质控制
一、中央空调水系统的管道安装
-
管道支、吊架的型式、位置、标高必须符合设计或 室内管道支吊架等技术标准的要求。 -
管道支、吊架如果固定在建筑结构上,不能影响结构的安全。 -
合理间距:管道支、吊架除承载管道重量外,还承载管道内水重和保温材料重量。PP-R管、PVC排水管支、吊架最大间距通常水平管0.8m-1m,立管1.5m-2.0m,每支立管支架不得少于两个,水平管间距过大会产生挠曲,形成气阻,会严重影响水流畅通。

-
保温管道与支、吊架之间应设置绝热衬垫,防止管道冷量(或热量)通过支、吊架传递,造成冷量(或热量)损失。 -
绝热衬垫必须能承载管道重量,同时满足消防要求采用不燃、难燃的绝热材料,一般采用经防腐处理的木衬垫。 -
绝热衬垫厚度必须≥保温材料厚度,宽度>支吊架支承面宽度。 -
管道与设备连接,与其连接的管道应设置独立支、吊架,防止管道重量附加在设备上,损毁设备。 -
支、吊架应与管道接触紧密,安装应平稳牢固。 -
安装在层高不大于 5 米的立管,管卡每层必须安装一个,层高大于 5 米每层不少于 2 个。
-
金属管道对接焊口的组对和坡口、焊缝形式应遵守相关规范中规定。 -
用氧气—乙炔气割加工坡口,必须除去坡口表面的氧化物,并打磨平整。 -
螺纹连接、卡箍连接或采用热熔连接的管道,切割后的应将管材端面毛边和毛刺去除,清除连接端面污物,确保管道连接严密

-
管道开孔应在管道安装前进行,管道开孔后,开孔部位的熔渣、铁屑会大量附着在管道底时清理干净。 -
管道内的熔渣、铁屑等杂物易沉积在水平管道底部,为减少杂物进入末端设备,与之相连水平干管相连时,宜从水平干管顶部和侧面开孔连接,尽可能避免从管道底部开孔连接。
-
管道布置须考虑阀门、仪表等观察、运行维护的方便,不妨碍其他设备、配件的运行维护和检修。 -
管道与管道,管道与设备以及管道与墙壁之间,应有适当的间隔。一般以管道的零部件或阀门(包括保温层)的最高点离设备(或管道,墙壁)1-3cm为定。
-
焊接:无缝钢管、焊接钢管采用焊接,氧气-乙炔焊一般应用壁厚≤2mm、公称直径≤32mm 的管道,电弧焊适用壁厚>1.5mm 的管道。 -
螺纹连接:DN≤100 热镀锌钢管采用螺纹连接(DN>100 时采用卡箍式、法兰或焊接连接),宜用于工作压力≤0.8Mpa 管道、阀门之间的连接。 -
热熔连接:适用于 PP-R 管。 -
粘接:适用于 PVC 或 PVC-U 排水管。
-
PP-R 管热熔连接应按照 GB50268-98“给水排水管道工程施工及验收规范”等技术规范操作。 -
切割 PP-R 管材,必须使端面垂直管轴心线,用洁净棉纱檫净管材或管件连接面上的污物。 -
PP-R 管与管件承插热熔连接时,必须使用专用热熔机具。 -
PP-R 管施工时注意掌握热熔时间和承插时的力度:热熔时间过短,易造成连接不紧密形成渗漏;热熔时间过长或承插时力度过大,易使管道内壁形成熔接圈,造成内壁过流面积缩小,阻碍水流通过。 -
PP-R 管热熔连接完成 24 小时后,方可进行灌水和管道水压试验。

-
管道与套管四周空隙应用隔热或其他不燃材料填塞紧密。 -
防水套管与管道之间应采用防水材料进行密封。 -
钢制套管应与墙面或楼板底部平齐,上部应比地面高出20~50mm。 -
管道焊缝避免置于套管内,套管不得作为管道的支撑。

-
电磁阀、热力膨胀阀、升降式止回阀等,阀头均应向上竖直安装。 -
阀门连接应牢固紧密、启闭灵活;成排阀门的排列应整齐美观,在同一平面的允许偏差为 3 毫米。 -
安装时应注意不得歪斜,禁止将阀门手柄朝下或置于不易操作的部位。安装带手柄的手动截止阀,手柄不得朝下。


-
强度试验压力:冷热水、冷却水系统的试验压力,当工作压力小于等于 1.0Mpa1.5 倍,但最低不小于 0.6Mpa;当工作压力大于 1.0Mpa 时,为工作压力加 0.5Mpa。 -
严密性试验压力:钢制管道为工作压力,塑料管道为设计工作压力的 1.15 倍。
-
对相对独立的局部区域的管道进行试压。在强度试验压力下稳压 10 分钟,压力不得下降;再将系统压力降至严密性试验压力,在 60 分钟内压力不下降、外观检查无渗漏且目测管道无变形才为合格。
-
系统试压时应将系统与(开式)膨胀水箱隔开。在强度试验压力下稳压 10 分钟压降不得大于 0.02Mpa,再将系统压力降至严密性试验压力,在 60分钟内压力不下降、外观检查无渗漏且目测管道无变形为合格。系统压力试验经检查合格后,方能进行系统清洗和保温工作。





-
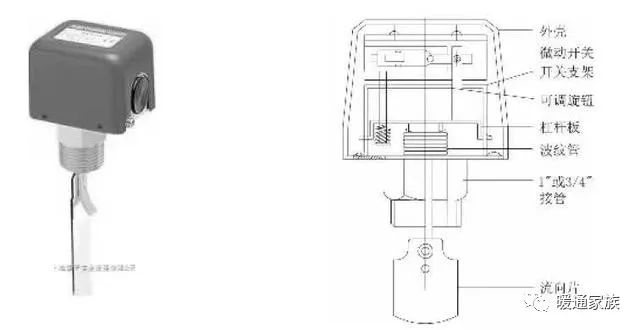
水过滤器 -
水流开关 -
水处理设备 -
排气装置 -
膨胀水箱 -
分、集水器 -
空调机组安装

-
应设置在在主机和水泵之前,保护主机和水泵不进入杂质、异物,过滤器前后应设有阀门(可与其他设备共用),以便检修、拆洗,安装位置须留有拆装和清洗操作空间,便于定期清洗。 -
过滤器应尽量安装在水平管道中,水泵入口过滤器多安装在主管上,介质的流动方向必须与外壳上标明的箭头方向相一致。 -
过滤器与管道连接方式有螺纹连接和法兰连接两种,连接要牢固、严密。
-
在冷水流量不足或缺水情况下,水流开关可使主机停止工作。 -
水流开关要求安装在主机出水主管水平管段上,前后必须有不小于5倍管径的平直管道。 -
水流开关安装箭头方向应与水流方向一致,切勿装错。 -
水流开关控制线应接在主机对应接线端子上,安装前应检查端子的通断情况,以免接错。 -
水流开关安装完毕后,其下部的簧片长度应达到管道直径的2/3处,且能活动自如,不应出现卡住或摆动幅度小的现象,以免误动作。


-
电子水处理仪一般按照安装所在管段的管径进行选择。 -
冷却水系统属开式系统,必须使用电子水处理仪对水质进行处理。 -
冷冻水系统属闭式系统,一般在冷冻水系统管路中或膨胀水箱进水管路中安装电子水处理仪。
-
当工程所在地水质较硬较差或是系统较大的时候,系统的循环水和补水最好是软化水,该空调系统必须配置水软化装置,常用全自动软化水装置。 
(树脂软水)
-
全自动软化水装置的选用一般按照系统补水量进行选择,安装在系统补水箱进水端。

-
水管系统最高点、分区分段水平干管、布置有局部上凸的地方,都应设置排气装置。 -
排气装置常用自动排气阀,安装时应在排气短管上设置同管径截至阀,为便于操作和检修,排气口宜连接橡胶软管将可能随排气一同排出的水分引至最近的接水盘,安装处应留检修口。 -
鉴于自动排气阀不可避免有部分水随空气排出,一般自动排气阀应安装在卫生间等不重要房间。
-
膨胀水箱与支架或底座要接触紧密,安装平整、牢固。 -
膨胀水箱一般采用普通钢板制作,制作安装过程中加强防腐处理。 -
膨胀管定压点宜设在循环水泵的吸入处,高层建筑膨胀管定压点是在回水干管最高处,定压点最低压力应使系统最高点压力高于大气压力10~15KPa 以上(1~1.5m),膨胀管上不应设置阀门(系统试压时应先将膨胀管封闭,待打压合格后再将膨胀管与系统连接)。 -
冬季较寒冷地区,对于安装在室外或容易引起结冻的膨胀水箱应确保上图的循环管正确安装,膨胀水箱和膨胀管须加强保温,避免冻坏膨胀水箱。


-
分水器和集水器一般选用标准公称直径DN200~DN500的无缝钢管制作,大型集分水器常用钢板卷管制作。 -
分水器和集水器底部应设有排污管接口,一般为DN40,分水器和集水器之间应设置压差平衡阀。 -
分水器和集水器与支架或底座要接触紧密,安装平整、牢固。
-
空调制冷机组:水冷螺杆冷水机组、水冷离心机组、风冷冷热水机组等。 -
空调设备:组合式空调器、吊顶式空调器、通风机、风机盘管等。 -
配套设备:冷冻水循环泵、冷却水循环泵、冷却塔等。
-
设备搬运
-
空调制冷机组及配套设备安装前须实地勘察,了解设备二次转运通道是否会阻碍设备搬运,制定好现场设备搬运、吊装方案。 -
制冷机组在搬运过程中机组倾斜不可大于15度,设备搬运应有防止机组翻倒措施。 -
设备水平或垂直搬运应有木制的框架和托架加以保护,防止设备外表面及零部件受损。 -
设备水平移动可利用滚杆滑排和手动葫芦移至安装位置。

-
设备吊装
-
大型设备的吊装:设备吊装由专业起重公司协作,起重机具的使用应按照有关规范的要求进行,不能超负荷作业。 -
设备的吊点应按照设备安装使用说明书规定,并根据现场工程师的指导进行设置。 -
非重型设备的吊装可采用桅杆构架和葫芦起吊。 -
吊装时应在有包装状态下吊运,保持机器平衡,安全平稳地上升。在无包装或包装已损坏搬运时,应用垫板或包装物进行保护。 -
制冷主机吊装时应注意保持垂直,倾斜不应大于40°。 -
起吊钢索能承受的强度应比设备的重量大3倍,检查起吊钩是否紧固机组。
-
风冷冷热水机组
-
不宜将机组安装在室内,如确需室内安装,则要求排风口距楼层天花板最小距离大于1.5米,并有足够的空气流量和通风设施。 -
不应安装于多尘或污染严重处,以防室外机热交换器堵塞。 -
不应安装于油污、酸性、碱性的腐蚀性气体场所。 
-
机组的噪音及排风不应影响到邻居,检查是否有阻碍空气侧热交换器空气流动的障碍物,以确保空气流畅,散热良好。 -
风冷冷热水机组四周应有1.2 米以上维修空间。

-
水冷冷热水机组
-
由于制冷剂比重比空气大,如果泄漏则会弥漫在地面上。因此,机组如装在封闭房间内则必须有良好通风,以防发生窒息,必要时应安装适当的声光报警装置。 -
为满足维护、检修和清扫蒸发器、冷凝器换热管的需要。机组必须有足够的抽管空间。在长度方向应大于机组蒸发器、冷凝器的长度。 -
为便于机器起吊和检修,应安装行车或转臂吊车,并注意机房要有足够的高度。 -
机组周围及整个机房应能实现完全排水。
-
吊顶式空调器、风机盘管
-
天花板内空间应满足设备高度和连接管道要求,保证有合适的冷凝水管安装空间。 -
保持足够的维护保养空间,留足够大的检修口,一般为400x400mm。 4)设备基础 -
实地检查安装位置,对建筑的载荷进行核实,设备基础受力点,应设置在梁或柱上。对安装位置平面尺寸、标高进行核实。 -
设备安装基础必须达到养护强度,表面平整。平面位置、尺寸、标高、预留孔洞及预埋件等均应符合设计要求。 -
地脚螺栓安装的铅垂度不应超过10/100,地脚螺栓离孔壁的距离应大于15mm,地脚螺栓底端不应碰孔底。地脚螺栓上的油污要清除干净,但螺纹部分应涂抹油脂,螺母与垫圈间和垫圈与设备底座间的接触均应良好。拧紧后,螺栓必须露出螺母1.5-5个螺距。
-
空调设备重量大多不是均匀分布,设备机组必须与基础充分接触,保证每点接触均匀,防止机组变形。 -
基础周围应设置排水沟,以排出设备周围积水。 -
检查基础位置的承受力,确保载荷力。
-
设备与基础间应按设计或规范规定安装弹簧减震器或橡胶减震垫。 -
设备与管道之间采用柔性软接,与设备相连的水管等重量不得附加在设备上,应设置独立吊架。检查设备的基础,其平面位置、尺寸、标高、预留孔洞等均应符合设计要求,基础表面平整,已达到养护强度。单机调试时,设备机体本身要有可靠的接地,必须行电机的绝缘测试,合格后接通电源。
-
制冷机组安装
-
设备就位应严格按照有关规范和说明书的要求,设备安装过程中应细心操作,防止损坏设备任何部位,对设备的细小部位和重要部件要加保护装置。 -
设备底座放在设备基础上,应均匀地旋紧地脚螺栓,并复查主机安装水平,其纵向、横向不平度均不应超过0.5/1000或设备说明书上的要求。 -
设备的进出水管均必须接可曲挠橡胶接头或不锈钢软接头,并安装阀门,用以调节流量和检修时切断水源。 -
系统水管在与机组接驳前,必须对整个管路系统进行清洗,然后拆下过滤器的过滤网清洗干净再装上,确认管路中没有颗粒及杂质方可与机组接驳。
-
组合式空调器安装
-
空调器应安装在高出地面的平台上,平台表面应平整。 -
空调器的各功能段组装时,段与段之间的连接应密封,不得漏风,骨架的连接处应涂相应规格的密封胶或其他填料。 -
及时清扫干净箱体内杂物、垃圾,对过滤网和盘管翅片进行吹扫、清洁。 -
进出水管必须装有阀门(用以调节流量和维修时切断水源)和可曲绕橡胶软接头或不锈钢软接头(减轻空调器震动传至水管上的强度),冷凝水排水管的水封高度应符合要求。 -
安装保温壁板前,应检查风机叶轮旋转方向是否正确,且应转动灵活。 -
空调器的进出风口应用柔性软管与送回风管连接,且不得作异形连接。

-
吊顶式空调器、风机盘管安装
-
安装前应作水压试验,不得有漏水现象,楼面不得打膨胀螺钉,避免渗水。通电检查风机转动情况,风机应转动正常。 
-
吊装注意配合标高尺寸,吊杆必须垂直,不得扭曲。 -
设备与风管、风阀连接必须安装柔性管,尺寸不能过长,一般在150-2550-250mm 之间,柔性管不得漏风,不得作异形连接。
-
通风机安装
-
风机安装时应清洗上油,风机应水平垂直,减震符合规范。 -
风机壳进风到与叶轮进口的间隙应均匀,叶轮不应与风机壳相撞。 -
叶轮旋转方向必须正确,滑动轴承温升不得超过35℃,最高不得超过75℃,滚动轴承温升不得超过40℃,最高不得超过80℃。
-
水泵安装
-
水泵在基础上就位时,应整体就位,特别注意地脚螺栓的安装要求。 -
水泵在校平前,不得进行配管施工。 

-
配管时,泵体接口和管道连接不得强行组合,有减震器的更应注意配管方法。在楼板上安装应作减震台。 -
试运行前,应加注油,填满填料,各阀门应扳动灵活,管道应注满工作用液,注意压力表读数。 -
水泵安装需做防水处理,增加防雨罩可延长水泵使用寿命。

-
冷却塔安装
-
冷却塔安装需对建筑的载荷进行核实,冷却塔托架受力点,应设置在梁或柱上。 -
冷却塔在基础上组装时,应注意水塔的垂直度,不得倾斜,以免影响布水器及电动机风机的正常工作,特别注意风机叶片与风筒部分的间隙要一致,不允许相差过大,要有施工测试存档。 -
进水管要垂直,保证布水管处于水平位置,转速合适,布水均匀。 -
管道在与冷却塔碰管前,应制订相应的保护措施,并严格执行,以免损坏冷却塔。 -
玻璃钢冷却塔和塑料制品作填料的冷却塔,安装应严格执行防火规定。

