空调冷冻水系统:该系统主要由制冷机组、冷冻水泵、冷冻水管道以及室内末端设备(风机盘管、空气处理机组等)组成,从制冷机组流出的低温冷冻水经冷冻水管道,输入到室内末端设备与室内空气进行热交换,带走房间内的热量,从而达到制冷的效果,最后回到制冷机组,完成一个循环。
冷冻水系统是为整个空调系统提供冷源。
空调冷却水系统:该系统由制冷机组、冷却水泵、冷却水管道、冷却塔等组成。冷冻水循环系统在进行室内热交换的同时,必将带走室内大量的热能。该热能通过制冷机组的冷媒传递给冷却水,使冷却水温度升高。然后冷却水从制冷机组经过冷却水管道压入到冷却塔,使之与大气进行热交换,降低温度后再送回制冷机组。
空调冷却水系统是为整个空调散热的系统。
冷凝水系统:室内空调末端设备(风机盘管、空气处理机组)在与室内空气进行热交换时,由于低于室内外空气的露点温度,空气中的水蒸气会在冷壁面遇冷析出而结露,最后经过冷凝水管道排出。
空调系统主要设备介绍:
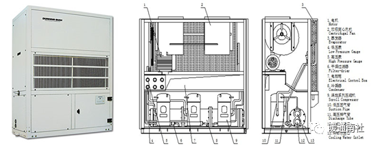
1、水冷冷水机组

主要作用:制出7℃的冷冻水,为整个车站的空调系统提供冷源。
2、组合式空调处理机组

空气处理设备,与室内空气进行热交换,对室内空气进行处理,主要用于车站的大系统、大空间。
3、风机盘管

机组内不断的再循环所在房间或室外的空气,使空气通过冷水(热水)盘管后被冷却(加热),以保持房间温度的恒定。
4、分集水器

中央空调分水器和集水器是为了便于连接各个水环路的并联管道而设置的,起到均压作用,以使流量分配均匀。
5、冷冻水泵和冷却水泵

冷冻水泵和冷却水泵主要是为冷冻水、冷却水循环提供的动力设备。
6、冷却塔

散热设备,利用水作为循环介质,将制冷机组冷凝器侧的热量(也就是从房间内吸收的热量)通过水在冷却塔内的流动再把热量传递给冷却塔周围的空气,散热过后再次进入中央空调冷凝器吸收热量。
中央空调水系统流程:

冷冻水循环系统:从制冷机组蒸发器流出的低温冷冻水进入分水器,然后经过分水器分配到室内的末端设备(风机盘管、空气处理机组)再与室内空气进行热交换,带走房间内的热量,达到制冷,最后经冷冻水泵回到主机蒸发器完成一个循环。
冷却水循环系统:冷冻水循环系统进行室内热交换的同时,必将带走室内大量的热能。该热能通过主机内的冷媒传递给冷却水,使冷却水温度升高,冷却水进入冷却塔中,使之与大气进行热交换,降低温度后再经冷却循环水泵回到制冷机组冷凝器。
空调水系统常见管材类型:

无缝钢管是一种具有中空截面、周边没有接缝的圆形钢材。无缝钢管具有中空截面,大量用作输送流体的管道,重量较轻,是一种经济截面钢材。常用于输送普通流体的无缝钢管(GB/8163-2018),其主要输送流体为水、油、汽等无腐蚀性介质,其代表的材质为20、Q345。无缝钢管的承压能力强,特别是管径在DN100的以上的管道上被广泛应用。一般建议在无缝钢管的工作承压能力不超过6MPa。
镀锌钢管,表面有热浸镀或电镀锌层的焊接钢管。镀锌可增加钢管的抗腐蚀能力,延长使用寿命。镀锌管的用途很广,除作输水、煤气、油等一般低压力流体的管线管外,还用作石油工业特别是海洋油田的油井管、输油管,化工焦化设备的油加热器、冷凝冷却器、煤馏洗油交换器用管,以及栈桥管桩、矿山坑道的支撑架用管等。

焊接钢管是指用钢带或钢板弯曲变形为圆形、方形等形状后再焊接成的、表面有接缝的钢管,焊接钢管采用的坯料是钢板或带钢。
涂塑钢管又名涂塑管、钢塑复合管、涂塑复合钢管,是以钢管为基体,通过喷、滚、浸、吸工艺在钢管(底管)内表面熔接一层塑料防腐层或在内外表面熔接塑料防腐层的钢塑复合钢管。
涂塑钢管具有优良的耐腐蚀性和比较小的摩擦阻力,环氧树脂涂塑钢管适用于给排水、海水、温水、油、气体等介质的输送,聚氯乙烯涂塑钢管适用于排水、海水、油、气体等介质的输送。
空调水系统管材选型要求:
冷水管、冷却水管、冷凝水管、膨胀水管,公称直径≤DN80采用镀锌钢管,DN100≤公称直径<DN300采用无缝钢管,≥DN300采用螺旋焊管。无缝钢管和螺旋焊管外径及壁厚按下表执行。无缝钢管材质应符合GB/T8163-2018规定要求。

以下着重讲解空调水无缝钢管施工工艺及相关要求。
空调水系统施工流程:
施工准备→坐标测定→支架预制、安装→管道预制→管道安装→管道阀门及附件安装→波纹补偿器安装→管道与机组(设备)连接→冷凝水管道安装与检验→管道试压与冲洗→隐蔽工程验收→管道保温。
施工准备:熟悉施工图纸与管道工艺流程、输送介质温度、压力与连接形式等的技术要求及施工验收规范。同时认真审阅施工图,注意施工图的设计深度和完整性,及时提出和解决设计图上存在的问题。
坐标测定:按设计施工图所标管道坐标位置、管道口径、类别与规范要求,及时复检土建做好的管道预留孔洞的坐标位置以及尺寸是否一致。并根据已有建筑和设备位置,室内标高基准线,绘制出管道单线加工预制图及支架加工预制图。
支架预制:依据各个支架实际尺寸加工,划线下料、定位钻孔到焊接成型,并做好油漆防腐工作(底漆两度、面漆一度,管道安装完毕后再刷面漆一度)。
支架安装:管道支架形式选用合理、安装平整牢固,排列整齐统一。管道与支架接触紧密。固定在建筑结构上的支、吊架不得影响结构安全,支、吊架不得有漏焊、欠焊或焊接裂缝等缺陷。支架安装完毕后必须进行工序检查,检查合格后方可进行安装。
管道支架形式分为:门型支架、悬臂支架、吊架和压制弯管拖架等。

钢管管道支架的最大间距:

无缝钢管的预制、安装:
管道预制:无缝钢管公称直径≤50mm时,应采用机械或钢锯、管子割刀切断,断口不准有缩颈和毛刺,必须采用气焊焊接。当公称直径≥65mm时,切断和坡口可采用机械或氧乙炔气割割断和坡口,但表面不可以裂纹、毛刺,焊接组对的对口,焊接质量必须达到GB50236的要求。
管道安装要求:
1)各种管道安装之前应核对管道与所通过之处建筑装修面的标高是否协调,在有吊顶及架空地板的房间应核实管道标高是否满足设备净空要求,以免因土建施工误差,造成管道返工。
2)冷水管、冷却水管、冷凝水管、膨胀水管,公称直径≤DN8采用镀锌钢管,DN100≤公称直径<DN300采用无缝钢管,≥DN300采用螺旋焊管。

3)公称直径≤DN80采用丝扣连接,与设备连接处采用法兰或柔性橡胶接头,相对接的法兰盘之间垫厚度为3mm的橡胶垫圈。公称直径>DN80采用焊接连接,采用焊接时每隔一定间距要加强法兰连接,三通处一定用法兰连接。
三通处一定用法兰连接。螺纹连接、焊接连接、法兰连接应符合《通风与空调工程施工规范》(GB 50738-2011)、《通风与空调工程施工质量验收规范》(GB50243-2002)规范的要求,对于直埋水管还应采用加强级防腐,确保管路的使用寿命。
4)管道标高为管底标高,所有空调水平管道与土建顶面成平行敷设,在干管的高点或局部抬高处应设DN15型自动排气阀(带球阀),除设计图已考虑的外,如在施工中由于处理管线交叉引起管路敷设有变化时均应增设,且自动排气阀应尽量避免装在吊顶内。在管道的最底点装设DN25泄水阀或堵头,其自动排气阀及泄水装置的排水应就近排向地漏或排水沟。
5)法兰密封垫采用中耐热橡胶片,可曲挠性橡胶软接头要配置限位装置。
6、长直管段每隔50m设波纹管补偿器,对于设有补偿器的管道应设置固定支架和导向支架。在管道穿越变形缝(沉降缝)时应设金属软管,并在两端加设固定支架。
7)水系统安装完毕未保温前应进行水压试验,试验可分不同环路进行。试验压力为工作压力的1.5倍,做到不渗不漏为合格。水箱需做满水试验,试压时不可将设备接入管网。开动水泵对整个环路进行冲洗和24小时循环运行,直到冲洗干净,水系统未冲洗干净前不得与设备相连。
8)管道穿墙或楼板应设钢制套管,当穿楼板时,套管顶部应高出装修层20mm,焊缝不得置于套管内,管道与套管的空隙应采用不燃绝热材料填实。
9)管道支吊架必须设置于保温层的外部,在穿过支吊架处应加垫相当于保温要求厚度的防结露保温垫(绝热衬垫)。保温垫采用浸过沥青的弧形木块。绝热衬垫的承压强度应能满足管道重量,厚度不应小于保温层厚度,宽度应大于支、吊架支撑面的宽度。
空调水系统的管道一般选用:无缝钢管、焊接钢管、镀锌钢管、有机材料管道(硬聚氯乙烯(PVC-U)、聚丙烯(PP-R)、聚丁烯(PB)、与交联聚乙烯(PEX)。
连接:
A、镀锌钢管:
管径小于或等于100mm:螺纹连接;
管径大于100mm:法兰或卡箍式专用管件连接。
B、焊接钢管:
管径小于或等于32mm:螺纹连接;
管径大于32mm:焊接。
C、无缝钢管:均采用焊接。
D、给水钢塑复合管道:
管径不大于100mm时可采用螺纹连接,管径大于100mm时采用法兰或沟槽连接。
E、塑料管道:可采用热熔连接、机械锁紧式连接、粘接连接、插接连接。
安装要注意事项:
A、冷凝水排水管坡度,其坡度宜大于或等于8‰;
B、软管连接的长度,不宜大于150mm;
C、冷(热)媒水、冷却水系统管道机房内总干管得支、吊架,应采用承重防晃管架;与设备连接的管道管架宜有减振措施;
D、当水平支管的管架采用单杆吊架时,应在管道起始点、阀门、三通、弯头及长度每隔15m设置承重防晃支、吊架。

套管制作安装:

1)套管管径应比穿墙板的干管、立管管径大1~2号。
2)套管的长度:过墙套管的长度=墙厚+墙两面抹会厚度。
3)套管内应填以松散材料,防止混凝土浇筑是堵塞套管。

空调设备和配件的安装和连管:
一、冷水机组安装
方法和步骤如下:
1.空间大小:安装时如果允许,请留足够大的空间;2.安装事要保持整机的水平;3.要求冰水机的电源要求正确接电源线;4.保持整机接地;5.冷却和冰水机管路畅通,冷却管理可以比机器管路稍大一点,考虑后其冷却效果要足够;6.开机前建议先通电12小时,特别是大型螺杆式冰水机;7.开机前确定冰水水箱水位充足;8.开机先开冷却系统;9.完成开机。

注意事项:1、进出水口位置正确;
2、电源相位正确;3、机器保持水平;
4、零线正确,千万别和底线接反;5、长期保持接地,漏电伤人。

二、冷却塔的安装
1、冷却塔安装应平稳,地脚螺栓的固定应牢固。
2、冷却塔的出水管口及喷嘴的方向和位置应正确,布水均匀。有转动布水器的冷却塔,其转动部分必须灵活,喷水出口宜向下与水平呈30°夹角,且方向一致,不应垂直向下。
3、玻璃钢冷却塔和用塑料制品作填料的冷却塔,安装应严格执行防火规定。

三、分集水器

(1)分、集水器应在开始铺设加热管之前进行安装。当水平安装时,一般宜将水分器安装在上,集水器安装在下,中心距宜为200mm,集水器中心距地面应不小于300mm.当垂直安装时,分、集水器在下端距地面应不小于150mm。
(2)位置宜设在便于控制、维修、且有排水管道处、如厕所、厨房等处。不宜设于卧室、起居室、更不宜设于贮藏间内、橱柜内、也可设在室内管道井内。
(3)对于半越层的房间,分、集水器应设在高点或高、低区分别设置;对于全越(复式)结构,则应设在上、下层对应的统一干管上。四、空调机组的安装
1、空调机组的分类
1)机组结构分类:柜式和组合;
2)安装方式分类:立式、卧式和吊装式。

柜式空调机组,也叫整体式空调机组,是将空气过滤器、表冷器、加热器、加湿器等空气处理部件,整体装在一个立柜式箱体内而形成的机组。

与机组连接的管道应设支架,其重量不应由机组承担。
卧式组合式:

组合式空调机组,也叫装配式空调机组,由不同的空气处理段组成,如新风段、回风混合段加热段等等。各组成段均按设计参数选用设备组装而成,段与段之间可在现场组装。
吊装式:

1、吊杆应有足够的强度;
2、吊杆螺栓应采取防松措施;
3、机组底部应设置隔振垫或采用弹簧减振吊架。
空调机组的安装:
安装工艺流程:


空调机组安装的位置应充分留有余地,以防止机组四周空间不足而造成管道接口操作困难;
同时安装空间应充分考虑到机组的检查维修尤其是滤网的拉出清洗或更换。
空调机组的配管连接:
安装前可不做水压试验。(前提是在合格期限内,表冷器无外表损伤),否则应做水压试验,试验压力为系统工作压力的1.5倍,且不得小于0.4MPa。观测时间为3min,压力下降。


空调机组应有不小于0.008的坡度坡向凝结水的出口,凝结水管应设≥60mm水封。


风机盘管的安装:
定义:风机盘管是中央空调的末端装置。
组成:热交换器、风机、接水盘、排气阀等。
作用:将室内空气或室内外混合空气通过表冷器进行冷却或加热后送入室内,使室内气温降低或升高,以满足人们的舒适性要求。

其工作原理是机组内不断的再循环所在房间的空气,使空气通过冷水(热水)盘管后被冷却(加热),以保持房间温度的恒定。





