
一、目的
近年来,随着城市配套战略的不断推进,商业项目的建设越来越多,包括XX的商业23,000m2、森林公园XX广场的商业140,000m2餐饮都占据较大比例,并成为商业建筑中业态的重要组成部分。同时,兴建的办公建筑内也存在配套商业—餐饮业态。餐饮业态必备工程条件–排油烟系统的设计与实施成为餐饮业态交付中非常重要的内容。餐饮的排油烟系统涉及招商落位、排油烟的土建井道布置、屋面设备管线综合排布、屋面设备基础的实施、排油烟系统的配电等,因此需要建立一套完整的排油烟系统设计与实施标准。
二、适用范围
本标准适用于在XX大中型商业、办公配套商业排油烟系统的设计、实施。沿街商铺、商业街也可以参照使用。本标准不涵盖大型餐饮厨房的全面通风。
三、使用说明及术语
1.餐饮业 Catering Trade
以从事餐食烹饪加工和消费服务经营活动为主的行业
2.油烟 Cooking Fume
食物烹饪、加工过程中挥发的油脂、有机物及其加热分解或裂解物质。
3.环境敏感目标 EnvironmentalSensitive Target
对环境变化易产生反应的对象。如居住、医疗卫生、文化教育、科研、行政办公为主要功能的场所。
4.井道 Air Shaft
用建筑材料制成的用于输送空气、油烟气等管道的土建竖井
四、餐饮商铺平面落位策划
商业项目从立项到交付经历如下设计流程:方案设计→初步设计→施工图设计→公共区精装修设计→商铺落位→配合招商机电调整设计→商铺精装修报批消防→商铺租户入场精装修。建筑方案阶段,应由XX等商业建筑设计公司(商业顾问)或由商管公司提供所需商业的布局,确定哪些是商业餐饮,哪些是商业零售。并由商业顾问明确,哪些是电餐饮,哪些是燃气餐饮,燃气厨房是否存在事故排风。电餐饮(咖啡厅、面包房等)一般排油烟量较小;燃气餐饮排油烟量较大。
1.建筑方案设计阶段餐饮落位的策划
根据方案设计阶段确定的餐饮区域,确定餐饮所需井道的位置,设置的原则为:1)原则上餐饮尽量多布置在顶层,便于排油烟、补风、燃气等设施的设计与实施;
2)每一层餐饮尽量沿竖向布置,以便于竖向土建管井的布置,同时节省建筑面积;
3)地下设置的餐饮,应为非燃气餐饮,且每个餐饮面积较小,可合用一套排油烟系统,并可不设置补风系统;
4)预布置每个区域餐饮的排油烟井道、补风井道、事故排风井道;
5)坚持每个餐饮铺位设置一套排油烟系统,受到建筑布局限制,无法实现一铺一套系统,可多家合用一套排油烟系统(如地下一层的多家小型餐饮可合用一个井道);
6)沿着楼梯间外延垂直竖向布置土建井道更合理、更方便。

2.施工图阶段餐饮落位的策划
施工图阶段,排油烟井道的设计应结合商管公司和建筑设计对所有餐饮铺位进行划分与编号,确定每个餐饮商铺的面积和编号后,对应设计相应的土建排油烟井道、补风井道、事故排风井道,并在屋顶和每一层相应编写每个餐饮商铺对应的排油烟管道,土建井道的设置应和建筑、结构专业的梁柱楼板相对应,设置的原则为:每个餐饮商铺的排油烟井道从竖直方向转到水平方向时,水平管道应在该餐饮的商铺内穿越,直到进入该餐饮的厨房内,规避水平排油烟管道进入公共区域,实在无法避免进入公共区域的水平管道,设计院应绘制出相应的管道尺寸,并及时与业主取得认同,并纳入到公共区域综合管线的范畴。
3.相关配套设计
此时应同时考虑燃气餐饮和电餐饮的落位,确认如下事宜:
1)确定燃气餐饮的厨房大致位置;
2)哪些餐饮需要设计燃气,燃气设计的大致路由;
3)燃气餐饮增设事故排风路径;
4)确认上屋面总燃气立管的位置,及地面调压箱(锅炉房调压箱、餐饮燃气调压箱)可能的位置。
5)哪些餐饮采用电,并明确这些餐饮的用电量(W/m2)。

五、排油烟系统土建管井的面积确定
1.排油烟系统土建井道
从地下一层到顶层,排油烟土建井道能合用的尽量合用,土建井道内可根据每个餐饮商铺计算的金属排油烟井道面积合理分配它们所占据的空间。
2.补风系统排油烟井道
补风井道拟靠近排油烟井道布置,设置原则是每个补风系统和每套排油烟系统一一对应。
3.燃气餐饮事故排风井道
燃气餐饮事故排风井道可以合用设置:即可设置一个竖向井道,在此竖向范围内的燃气餐饮可共用此土建井道,通过此竖向井道将泄漏燃气排至屋面,井道尺寸按照此竖向范围内的最大餐饮事故排风量确定其井道尺寸。

六、排油烟系统的设计
1.出售商铺油烟净化系统的设计原则:出售的商铺一般面积不大,拟采用合用系统,且不设计补风。
2.出租商铺油烟净化系统的设计原则:出租商铺面积大小不等,拟采用一铺一排油烟系统,大于100m2的餐饮商铺应设置补风系统,燃气餐饮需设置事故排风系统。
3.排油烟系统风量的计算规则:
1)在招商尚未进行时,拟按照餐饮商铺面积的20-30%确定厨房面积,按照换气次数对排油烟量进行估算确定,计算高度依据板下净高来确定。对于轻型餐饮按照≥40次/h换气次数计算,对于重餐饮,按照≥60次/h计算。各类餐饮单位厨房排油烟风量及管道、净化设备占用面积如下表:
A01中餐类(含火锅、中快餐)

A02西式快餐

A03茶点、咖啡厅
每店4000-8000m3/h排油烟量,推荐排油烟管道面积0.1-0.25m2,预留净化设备面积3-5m2。
选择风机时,计算风量×1.1确定最终风机风量,排油烟风机选型公式为:
G1≥(40-60)×S×h
其中S为厨房面积m2;h为厨房结构板下净高;G1为排油烟风机的排风量m3/h。
2)水平管路风速按照8-10m/s计算,垂直管道风速按照≤12m/s计算。静电油烟处理设备通过风速控制在2.5m/s,如设置消声器,消声器(阻力按照50Pa计算)通过风速控制在≤7m/s。
3)现代商业屋面较复杂,本身有高低差,有运动活动场地、屋面钢架、绿化地面,设备繁多:一般有冷却塔、风冷VRV外机、冷库外机、排风风机、排烟风机、新风机组、全热交换新风机组、太阳能集热板、消防及太阳能水箱、强弱电桥架、燃气管道等。屋面防水工程一直是建筑质量验收的重中之重,油烟净化设备及风机应提前考虑布置,距离目标敏感设备设施(新风机组、冷却塔、VRV外机)应≥10m间距布置,且布置在靠屋面女儿墙位置为佳,排风口应向高空排放;

4.排油烟系统风机全压的计算规则:
1)选择某特定餐饮的厨房,按照该厨房位于屋顶风机最远端,靠近外墙且最不利处为厨房烟罩最不利处来计算。
2)排油烟风机的全压控制在400-950Pa为宜。
3)排油烟系统风机全压的估算:
∆P=∆pm×(1+k)×L+∆P1+∆P2
其中,
L–风管总长度,指从最不利烟罩点至屋面风机出口直至屋面排油烟口的总长度;
k–管网局部阻力和沿程阻力的比值;弯头和配件阻力较少时,k=1.5;较多时k=2.5;
∆pm–单位长度风管沿程压力损失,根据假定流速法,先初选风管尺寸,风管尺寸确定后,根据实际流速、风管尺寸选定;
∆P1–油烟净化器的阻力(根据目前市场上的油烟净化器一般取100Pa);
∆P2–消声器的局部阻力(一般取50Pa);
按此公式计算出的风机全压一般少许偏大,抽力偏大对提高排油烟系统净化效果有利。

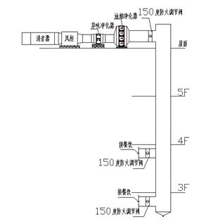
图1 排油烟系统图
5.排油烟系统油烟净化器的选型原则:
油烟净化器的通过风量按照排油烟风机风量适配,油烟净化器的阻力控制在≤100Pa。
6.补风系统的设计计算原则:
补风机的风量取排油烟风机风量的80-90%,补风管道内的风速控制在≤8m/s,补风机的全压按照补风能送入厨房为准。补风风机的计算公式为:
G2=1.1×(80-90%)×G1
7.燃气餐饮商铺事故排风系统的设计原则:
1)事故排风应和排油烟及补风系统同步设计,通过用井道排至屋面。事故排风量就计算如下:G3≥12×s×h
其中s为厨房面积m2;h为厨房结构板下净高;G3为事故排风风机的事故排风量m3/h。风管风速控制在≤15m/s,吸风口速度控制在≤10m/s。
2)事先未考虑事故排风或改造项目,可通过以下方式提供事故排风的路由:

图2 事故排风路由之一(几个燃气餐饮商铺合用竖向井道)

图3 事故排风路由之二(通过百叶窗排至室外)
8.排油烟系统材质的规定:
1)排油烟风机须采用外置电机风机;事故排风风机采用防爆电机;排油烟风机、补风风机优先采用离心式风机箱,风机采用国产优质产品;

图4排油烟系统的优秀案例
2)油烟净化器采用高压静电模块式,净化效率达到冷却多普勒效率>93%,排放浓度3,排放时目测无烟;油烟净化器表面风速≯2.5m/s;静电油烟净化器的本身阻力≯100Pa;电离与收集器为独立结构,电离器为不锈钢材质,收集器为铝合金构建,收集器极板的间距不大于8.6mm;以保证收集面积;每层收集构建都有独立的排污盘,以免污物溢流到下层收集组件表面;电离器与收集器作为独立的单元能清洗与替换;为有效过滤油烟与气味粒子,每个配电盒至少能提供12kv电压,给收集器提供6kv电压;电离与收集组建须有高电压弹簧继电器,并需手动开启,维修时易于拆卸;设备提供楼宇控制系统的连接点,包括远程启停、工作状态显示,故障报警等;
3)风管材质的规定:高档优质项目管井内的垂直管道、屋面管道采用采用奥氏体307不锈钢或奥氏体304不锈钢,一般项目管井内的垂直管道、屋面管道采用奥氏体201不锈钢,不锈钢风管管材采用≥1.5mm厚,连接方式采用手工钨极氩弧焊。水平方向的风管采用镀锌铁皮制作。

图5 采用201不锈钢的排油烟系统
9.排油烟系统的配电
1)合用排油烟系统的餐饮,从屋面公共动力箱配电;
2)每个餐饮商铺独立排油烟系统的餐饮,从该商铺自用配电箱取电。
10.排油烟系统的控制
1)合用排油烟系统的餐饮,应设计屋面远程集中控制系统,远程控制排油烟系统的启停;
2)独立排油烟的餐饮,从该商铺自用配电箱的开关柜自行控制各自的设备启停。
11.风管施工及屋面设备基础的实施
1)应赶在土建分包砌筑风井前,合理安排排油烟风管的施工,避免墙体事先砌筑造成不必要的返工。
2)在屋面防水保温实施之前,需事先确定好所有屋面排油烟设施的设备的设计,并及时提供给土建施工单位付诸实施,设备基础的设计应具有通用性,以应对可能的设备变更;
3)排油烟风机、补风风机、事故排风风机(如有)、油烟净化器风机、消声器(如有)均应设置设备基础。
12.餐饮区风量的平衡
在商家入驻,排油烟系统已经实施,通电后,开启排油烟风机和补风风机,采用风速仪,测试厨房门口风速≤1m/s判定为系统设置合理。为避免整个商业风量平衡失衡,应监督餐饮商铺在厨房作业时,开启补风系统。

