空气-水空调系统应用较多的是风机盘管加独立新风系统。最完善的空气-水空调系统主要由冷水机组、冷热水与冷凝水系统、冷却水系统、空气处理设备、新风系统组成。

组成:空气处理设备(风机盘管和新风机组),新风系统,冷热水与冷凝水系统,冷水机组,冷却水系统(同全空气空调系统或与全空气系统共用)。
1.空气处理设备(风机盘管和新风机组)
(1)新风机组
新风机组提供保障室内卫生所需的新鲜空气。

(2)风机盘管(末端装置)
对空气进行冷却减湿或加热,从房间或吊顶中抽回风,处理后送入房间。

风机盘管以卧式为主,也可以立式安装。
卧式和立式风机盘管比较
|
序号 |
比较内容 |
卧式布置 |
立式布置 |
|
1 |
占用面积和空间 |
通常安装在过道或室内吊顶内,不占房间使用面积和空间。 |
占用周边区一定的面积和空间 |
|
2 |
气流分布和温湿度均匀性 |
冬季热气流不易下降,有一定温度梯度。 |
冬季热流可防止窗面结露和下降冷气流。如房间进深大则温湿度不太均匀。 |
|
3 |
施工安装 |
施工较为不便 |
施工安装方便 |
|
4 |
维护保养 |
维护较难 |
维护方便 |
|
5 |
经济性 |
水管路较短,便于集中布置。 |
水配管较长 |
图例:



办公室的风机盘管通常在整个房间均匀布置。

2.新风系统
风管布置与全空气系统相似。风管较简单,风管断面规格小,风口数量少,风口类型同全空气。
主风管通常设置在走廊处,为便于走廊通风可在风管上直接接风口。

新风机组较少有新风机房,而是将机组直接吊装在楼板上,注意减振。
新风管道必须要保温。


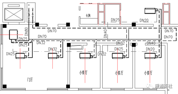
图中所示餐厅空调系统的新风机设置靠近外窗外,便于直接获取新风。
图示为新风系统平面图,图中每个小餐厅均设置一台风机盘管,门厅设置两台风机盘管,新风机组设置在走廊端部,新风经处理后与风机盘管处理后空气混合送入空调房间。
3.冷热水和冷凝水系统
风机盘管冷热水系统可用采用双管制或四管制。如果空调是季节性的,一般用双水管较为经济合理。

水系统复杂。每个风机盘管均接供水管、回水管,为了排除冷凝水,需设冷凝水管。冷凝水通常就近排放,如果不能,则设置管道集中排放。

图示中红色的线为冷凝水管,绿色为供水管,蓝色为回水管。
新风机组也需接三条水管。

水管均需做保温层。

水系统最高点设自动放气阀,最低点设泄水装置。


空气-水空调系统——典型是风机盘管加独立新风系统。
1、集中设置的空调冷热源和新风机处理空气;
2、具有分散设置在空调房间的二次空气处理装置风机盘管(末端装置)。
适用:
(1)空调房间多,空间小,各房间要求单独调节;
(2)建筑物面积较大,但主风管敷设困难。
风管较小(只有新风管道)、水系统复杂,水管长度大,有供水和回水管。
每个房间均有风机盘管。
新风机房多数设置在空调所在层。
如果新风量较少,则直接设置吊顶式新风空调箱(吊装在楼板上),无空调机房。
三、识图举例
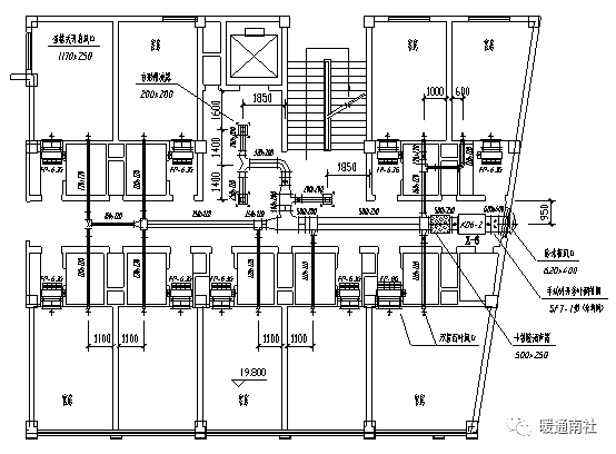
图示为风机盘管加新风系统风管平面图,图中每个客房均设一台风机盘管,型号为FP-6型,风机盘管为卧式,布置在室内走道吊顶内。新风机组设置在走廊,新风处理后经消声器通过主风管沿走廊输送至各个客房,新风不再经风机盘管冷热处理,风机盘管只负责处理室内回风。走廊采取直接从新风管道上接风口送风实现空调对温度的要求。

辐射空调:


