一、常用图例符号



二、标注
(1) 定位尺寸标注
平面图和剖面图中应标注出设备、管道中心线与建筑定位轴线间的间距尺寸。

(2) 风管规格标注:风管规格用管径或断面尺寸表示。
1)圆形风管规格用其外径表示,直径数字前冠以英文字母D。如D650表示外径650mm的圆形风管。
2)矩形风管规格用截面尺寸用“截面宽×截面高”表示。如风管标注为800×400表示该风管截面宽800mm,高400mm。
(3)标高:在通风及防排烟施工图中,建筑各部分的高度和被安装物体(风管、水管、设备)的高度用标高这个方法来表示。下面的横线为某处高度的界限,三角形上的横线上标注为该处的高度,标高的单位为“米”。

标高的零点,通常为底层标高,与该零点相比较,高于它的位置,标高为正;低于它的位置为负。

三、施工图的内容
(1)设计说明和施工说明
设计说明介绍设计概况和通风方式,风量指标。建筑物的耐火等级,防排烟的方式,烟气的控制流程等。
施工说明介绍系统所使用的材料和附件,系统工作压力和试压要求,施工安装要求及注意事项等内容。
(2)平面图、平面图:主要表明各种通风设备与通风管道的平面布置情况。

平面图内容包括通风管道的平面布置和风口的平面布置,通风设备及其他设备的位置、房间名称、主要轴线号和尺寸线;通风竖井的位置;首层平面图中还包括排风井与建筑物的定位尺寸。

(3)剖面图
当平面图不能表达复杂管道的相对关系及竖向位置时,就通过剖面图实现。剖面图是以正投影方式给出对应于机房平面图的设备、设备基础、管道和附件,注明设备和附件编号,标注竖向尺寸和标高。

(4)系统图
系统图主要表明通风管道与通风设备的空间位置关系,通常也称为通风管道系统轴测图。

(5)详图
对于通风设备及管道较多处,如风机房、防火阀门、管道交叉处等,在平面图中因比例关系不能表述清楚时,采用绘制局部放大平面图,通常称为大样图。

详图内容包括设备及管道的平面位置,设备与管道的连接方式,管道走向、管道规格,仪表及阀门、控制点标高等。常用的设备施工详图可直接套用有关通风标准图集。

三、通风系统施工图的识读
1.识图要点
通风系统在识读施工图的过程中,应注意以下几个方面:
(1)根据风口处标明的气流方向判定是排风系统还是送风系统。

(2)顺着气流的方向识图,对于排风系统,从排风口开始,沿着风管直至风机到室外;送风系统,从新风口开始,沿着风机、风管至送风口。
(3)明确标注的尺寸及参数:风口标明大小及位置;风管标明规格;风机标明主要性能参数;阀门标明主要性能。
(4)如果是地下室排风系统,排风机则将气体排至风管,风管再通至地面上。
2.识图举例

图示是排风系统平面图,系统设置四个排风口,类型是单层百叶,规格为500×300mm,风口的位置标注在图中,经变风量风机箱将废气通过外墙排风口排至室外大气环境。按气流运动方向风管的规格分别为500×200mm、630×250mm。

图示为送风系统平面图,系统设置二个送风口,类型是单层百叶,规格为800×320mm和800×400mm,风口的位置标注在图中,室外新风经通风竖井进入机房,经混流风机加压后送入房间。按气流运动方向风管的规格分别为1000×400mm、630×400mm。在送风口前设置70℃关闭的防火阀。
风机的性能参数是:风量8652m³/h,风压196Pa,功率1.1kw,转速1450r/min。
四、机械排烟系统施工图的识读
1.识图要点
(1)机械排烟系统通常具有风管、风口和排烟风机,并在机房入口设有当温度超过280℃时能自动关闭的排烟防火阀。
(2)排烟管道必须采用不燃材料制作。安装在吊顶内的排烟管道,其隔热层应采用不燃烧材料制作,并应与可燃物保持不小于150mm的距离。

(3)排烟风机通常设置在需排烟的建筑层内。
(4)如果地下室排烟,排烟风机则将烟气排至烟道,烟道再通至地面上。


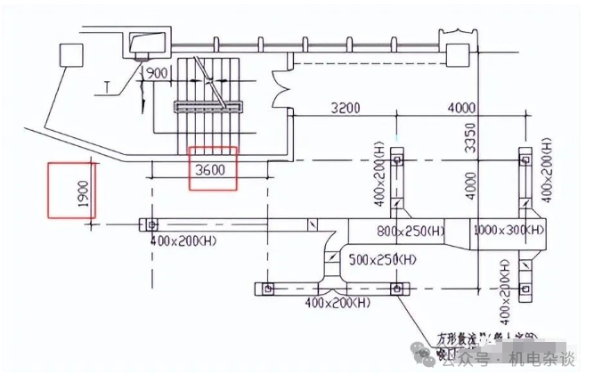
图示为地下室排烟平面图,图中风管较为复杂,分支风管的规格分别为400×200mm和630×320mm,主风管的规格为1000×320mm,高度为顶棚下0.7m,并设有当温度超过280℃时能自动关闭的排烟防火阀。风口均为单层百叶排风口,800×320mm共2个,400×400mm共2个,400×250mm共2个。同时在本层中排烟机房内设有消防低噪声柜式离心风机,排烟防火阀与排烟风机联动。
五、加压送风防烟系统施工图的识读
1.识图要点
(1)加压送风防烟的风机通常设置在屋顶,大多数采用混凝土风管(土建施工时完成)

(2)注意标注的尺寸及参数:风口标明大小及位置;风管标明规格;风机标明主要性能参数;阀门标明主要性能。
(3)施工安装主要内容为风机的安装和风口的安装。

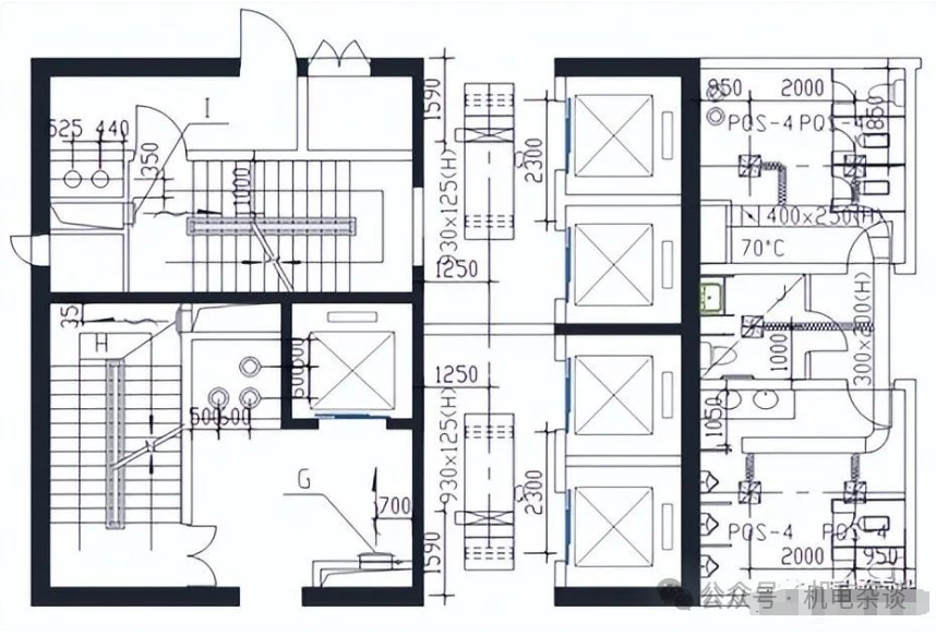
图示为加压送风防烟系统平面图,防烟楼梯间设置两个正压送风口,尺寸为400×200mm,安装位置距地面300mm。消防电梯间前室设置一个正压送风口,尺寸为400×250mm,安装位置距地面300mm。

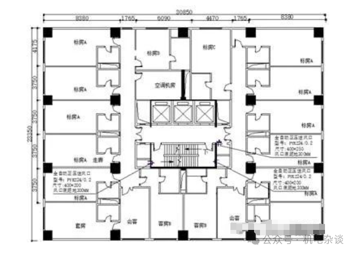
图示为电梯机房防排烟平面图,图中所示,屋顶设置加压送风机,分别用于两个剪刀楼梯间正压送风和合用前室正压送风。风机均采用低噪声消防柜式离心风机,每台风机的性能参数主要标注风量、风压和功率,如合用前室正压送风机风量为20813m³/h,风压为410Pa,功率为11KW。并在风机的正压段设置当烟气温度超过280℃时能自动关闭的防火阀。


