机电天下 暖通空调 商业综合体空调系统运行专业知识

商业综合体空调系统运行专业知识

空调系统的本质是什么?

空调系统运行的误区和痛点是什么?
1.系统安全;系统稳定;系统节能;
2.附属设备不重视;附件功能不了解;重要参数不关注;节能手段不尝试。
 
冷源:
冷源系统图:
冷水机组原理:
冷机效率:COP=ICOP×DCOP
ICOP:逆卡诺循环效率,即理论能达到的最高效率;
ICOP=Te/(Tc-Te),Te为蒸发温度,Tc为冷凝温度;
提高蒸发温度、降低冷凝温度,COP会升高;
通常,离心机COP在5.1左右,螺杆机COP在4.8左右。
冷机COP值是冷机满负荷运行时的能效值,冷机大部分时间在部分负荷运行,此时评价能效可使用综合部分负荷性能系数IPLV。
GB50189-2015《公共建筑节能设计标准》:
4.2.13  电机驱动的蒸气压缩循环冷水(热泵)机组的综合部分负荷性能系数(IPLV)应按下式计算:
IPLV=1.2%×A+32.8%×B+39.7%×C+26.3%×D
式中:A——100%负荷时的性能系数(W/W),冷却水进水温度30℃/冷凝器进气干球温度35℃;
B——75%负荷时的性能系数(W/W),冷却水进水温度26℃/冷凝器进气干球温度31.5℃;
C——50%负荷时的性能系数(W/W),冷却水进水温度23℃/冷凝器进气干球温度28℃;
D——25%负荷时的性能系数(W/W),冷却水进水温度19℃/冷凝器进气干球温度24.5℃。
1、标准图设计说明:空调系统冷冻水供、回水温度6/12℃,冷却水供、回水温度32/37 ℃。
解读:以上冷冻水、冷却水的供、回水温度仅为设计工况,用于对冷机、水泵、冷却塔及空调末端的选型,实际运行工况下应依据季节、室外气象参数、实际客流、运营需求等因素,综合考虑环境品质和节能,在某系统模式里合理设定并持续优化,详见《某系统空调运行策略操作手册》。
2、某系统设计标准
运行模式及参数初始设定值(运行模式时段、不同时段冷机开启台数、冷冻水供水温度、冷冻水和冷却水供回水温差、冷冻水供回水压差、冷却塔出水温度)
解读:这些初始设定值并非适用于所有气候区的广场,每个广场应根据实际气候特点、经营情况在模式里合理设定并持续优化。具体参见《系统空调运行策略操作手册》。其中供回水压差设定值需根据系统调试时实测值。
问题1:冷机冷凝器压力过高是什么原因?
1、冷凝器结垢,表现为趋近温度小;
2、冷却水回水温度过高,可能是:冷却塔填料堵塞或老化;布水器堵塞;溢水严重;
3、冷却水流量过低,可能是:大小机同时运行;冷却泵切换阀未关闭。
直接影响:
1、制冷效果差
2、运行能效降低
3、冷机喘振
大小机同时运行:
如何解决?
1、如广场空调负荷开一台离心机不够,开两台离心机又偏多(负载率低),可通过调节大、小机组冷却侧阀门开度(螺杆机阀门开度放大,离心机阀门开度减小),或者调整大、小冷却泵的频率(小泵频率提高,大泵频率降低)的方法;
2、调整运行策略,避免大小机同时运行,如同时开两台离心机并采用间歇运行的方法。
冷却泵切换阀未关闭:
问题2:冷机出口应设置电动阀还是手动阀?
目前大部分为“一机对一泵”系统,且倒泵的切换阀常闭,循环泵出口有止回阀,保证各机组之间不会串水,因此冷机出口设置手动阀即可。
但也有部分的系统非一机对一泵,此时就要求每台冷机对应设置电动阀,以免冷冻水或冷却水经过不运行冷机旁通,造成流经冷机的水量小于额定水量,冷机COP降低,甚至停机保护或喘振。
喘振:制冷压缩机工作过程中,当进入叶轮的气体流量小于机组该工况的最小流量时,冷凝器制冷剂气体会倒流至压缩机,当压缩机的出口压力大于冷凝压力时,压缩机又开始排出气体,气流在系统中产生周期性的振荡,此时机组会做周期性的大幅振动。
造成喘振的原因:
1、蒸发压力过低:如回水温度降低,导叶开度减小以至于压缩机出口压力与冷凝压力接近;
2、冷凝压力过高:如冷却水量不足、冷却水管堵塞、冷凝器结垢,导致冷凝器内高压气态冷媒热量无法正常被带走;
3、压缩机故障;
4、节流装置不能正常开启,或负荷过低造成节流阀开度过小。
判断喘振的典型现象:
1、压缩机的出口压力先升高,后急剧下降,呈周期性大幅波动;
2、压缩机的流量急剧下降,并大幅波动,严重时甚至空气倒灌至吸气管道;
3、压缩机的电机电流和功率表指示大幅波动;
4、机组强烈振动,同时发出异常噪声。
 
冷冻冷却泵:
同型号水泵同步变频,避免定频泵与变频泵并联运行!
水泵的电机功率:N=KP=KPe/η=KρgQH/1000η
P—泵的轴功率(KW);
Pe—泵的有效功率(KW);
Q—泵的流量(m3/s);
H—泵的扬程(m);
K—电动机的安全系数,一般取1.1~1.3;
η—泵的效率,泵的有效功率和轴功率之比;
f—泵的电机频率(Hz)。
f1/f2=(n1/n2) 
Q1/Q2=(n1/n2) 
H1/H2=(n1/n2)2
P1/P2 =(n1/n2)3
水泵电机供电频率与转速成正比,因此水泵流量、扬程、输出功率分别与频率、频率的平方、频率的三次方成正比。
冷冻水泵和冷却水泵的设计流量是冷机满负荷运行时蒸发器和冷凝器的水流量需求;
冷冻水泵的设计扬程为冷机蒸发器阻力、末端设备换热器阻力、控制阀及过滤器等局部阻力、管路沿程阻力之和,万达广场一般约为30~36m;
冷却水泵的设计扬程为冷机冷凝器阻力、冷却塔集水盘水位与布水器的高差、冷却塔布水管处所需水头、控制阀及过滤器等局部阻力、管路沿程阻力之和,万达广场一般为28~32m;
冷冻泵、冷却泵的实际流量和扬程会根据冷源、末端、管路系统的实际运行情况与设计值相偏离,即管路特性曲线发生变化,水泵的运行工况点(水泵运行曲线和管路特性曲线的交叉点)会发生滑动。
1)冷冻水泵输送系数:
Q——冷冻泵输送的热量(制冷量);
W2——冷冻泵的总功耗。
输送系数越大表明冷冻水系统的经济运行情况越好;用于全年累计工况的评价,该指标限值为30;用于典型工况的评价,该指标的限值为35。
现象
问题原因
判断方法
建议措施
冷冻水供回水温差过小
冷冻水泵持续高频运行
变频器是否故障;水泵是否现场打手动
排除变频器问题;水泵按逻辑自动运行。
水泵切换阀门未关闭导致冷冻水回水旁通流经未运行冷机
排查切换阀是否关闭
保持切换阀常闭
水力失调或末端存在旁通,为保证最不利末端有水而提高运行频率甚至加开水泵
排查末端环路有无小温差且降低水泵频率后流量不足情况
水系统调试完善
水泵选型过大导致工作点偏离高效区
测试水泵流量和扬程与设计工况的偏差
选型错误更换水泵
冷冻水泵扬程过大
管路中存在不合理的阻力部件
排查压降过大的环路及该环路阀门、过滤器等附件是否堵塞或损坏
消除不合理压降
冷冻水泵运行策略不合理
冷机关闭后冷冻泵仍长时间运行
在慧云平台上查询冷冻泵与冷机启停时间
冷机停机后冷冻水泵运行时长不宜超过1小时
2)冷却水泵输送系数:
Qcw——冷却泵输送的热量(制冷量+冷机功耗) ;
W3——冷却泵的总功耗,KWH。
输送系数越大表明冷却水系统的经济运行情况越好;用于全年累计工况的评价,该指标限值为25;用于典型工况的评价,该指标的限值为30。
现象
问题原因
判断方法
建议措施
冷却水供回水温差过小
冷却水泵持续高频运行
变频器是否故障;水泵是否现场打手动
排除变频器问题;水泵按逻辑自动运行
水泵切换阀门未关闭导致冷却水回水旁通流经未运行冷机
排查切换阀是否关闭
保持切换阀常闭
水泵选型过大导致工作点偏离高效区
测试水泵流量和扬程与设计工况的偏差
选型错误更换水泵
冷却水泵扬程过大
管路中存在不合理的阻力部件
排查阀门、过滤器等附件是否堵塞或损坏
消除不合理压降
冷却水泵运行策略不合理
冷机关闭后冷却泵仍长时间运行
在慧云平台上查询冷却泵与冷机启停时间
冷机停机后冷却水泵应随即关闭
设计任务书:空调水采用变频泵变流量时,可根据供、回水总管间的压力差或供回水温差改变循环泵转速,通过冷水机组的最小流量不得低于额定流量的70%,且应在供回水总管之间设电动调节型旁通阀。
X系统设计标准:
冷冻水泵的自动控制逻辑:
根据供回水总管的压差或温差自动调整冷冻水泵的运行转速(偏差值可设定)
压差低于设定值-偏差或温差高于设定值+偏差时,增加水泵频率;
压差高于设定值+偏差或温差低于设定值-偏差时,降低水泵频率。频率不应低于35Hz;
单台水泵运行且水泵频率降至下限,压差仍高于设定值+偏差或温差仍低于设定值-偏差时,水泵频率不变,开启压差旁通阀调节开度。
解读:
(1) 冷冻泵变频是由温差控还是压差控?
压差控制分为总管压差控制和末端压差控制;
三种控制法中,末端压差控制的响应特性和稳定性较好,末端压差控制和温差控制的节能性较好;
压差控制分为定压差和变压差,变压差控制能同时兼顾末端需求和系统节能,专业群控厂家普遍采用;
目前广场较多采用的是温差控制法或压差与温差相结合的控制法
(2) 水泵变频存在下限
冷冻水泵变频下限为35Hz,即单台冷机额定流量的70%;
通常万达集采冷机蒸发器流量下限可低至额定流量的40%~50%;冷机蒸发器流量过低,制冷量及能效均大幅降低,甚至停机保护。
(3) 压差旁通阀的作用
设置压差旁通阀是为了避免通过冷机的流量低于冷机允许最小流量,同时避免末端水阀全部关闭(如末端负荷极小或系统调试)时系统超压;
出于以上两个目的,应对压差旁通阀设置两个动作压力:第一个是冷机最小流量保护的动作压力,应为系统调试阶段1台水泵35Hz运行时供回水压差的实测值,压差高于此值旁通阀开启,开度随压差值增加而增大;第二个是系统超压保护的动作压力,可设置一个系统正常运行不可能达到的值,如500kPa,压差高于此值旁通阀开度100%开启。
部分压差旁通阀未接控制线,常开或常闭,常开将造成末端供冷不足,常闭将影响系统稳定性。筹备期工程验收严格把关,营运期广场排查整改。
问题:一机对多泵运行对吗?
原设计为冷机、冷冻泵、冷却泵一一对应,影城过热并非水流量不足,而是空调水系统未充分调试,造成水力失调。
 
冷却塔:
冷却塔气水比影响冷却效果,如果停风不停水或者风机皮带轮打滑,气水比降低,冷却效果大打折扣。
X设计标准:
根据冷却塔出水温度自动调整冷却塔风机的运行台数及频率(偏差值可设定):
冷却塔开始运行时,所有风机均开启;冷却塔停止运行时,风机均关闭;
出塔温度高于设定值+偏差时,整体提高风机运行频率;
出塔温度低于设定值-偏差时,整体降低风机运行频率,频率不应低于30Hz;
频率达到下限其出塔温度仍低于设定值-偏差时,应按组关闭风机。
设定值低于冷却塔出水极限温度时,自动修正为极限温度。用户在子系统上应能选择是否启用自动修正功能。冷却塔出水极限温度取“室外湿球温度+3~5℃”,其中夏季取小值,过渡季取大值。 
解读:
(1) 冷却塔联合变频
工频运行
联合变频
运行台数
5
10
单台功率 kW
5.5
5.5
运行频率 Hz
50
30
总电功率 kW
27.5
11.9
冷却水回水温度相同前提下,联合变频可大幅降低冷却塔能耗。冷却塔风机有变频器的应使用联合变频,无变频器的应杜绝“停风不停水”。
(2) 冷却塔出水温度应如何设定?
由冷机效率计算公式可知,降低冷却水回水温度即冷却塔出水温度,可提高冷机COP,虽然冷却塔风机能耗会更大,但冷机和冷塔总能耗会降低。建议冷却塔出水温度设定值依据室外湿球温度值。
(3) 冷却塔出水极限温度是什么?
冷却塔的冷却过程是空气与高温水的热湿交换过程,空气带走高温水的潜热使其温度降低,理论上最低可降至空气的湿球温度,但通常冷却塔出水温度比空气湿球温度高一些,其温差称为“逼近度”,慧云设计标准上“逼近度”取3~5℃。
(4) 冷机允许的最低冷却水温
冷却水温度过低,机组排气压力偏低,通常压缩机的润滑油靠排气压力推动,建立不起油压会造成压缩机缺油,机组就会停机保护。
以开利冷机为例,螺杆机的最低冷却水温度为12.8 ℃(启动)/18 ℃(运行),离心机的最低冷却水温度为13.7 ℃(启动)/15.3 ℃(运行)。每个品牌冷机的最低冷却水温要查该冷机的技术参数,保险起见,万达通常要求冷却水低温报警设为20 ℃。
问题1:冷却塔应配置电动阀还是手动阀?
如冷却塔风机为变频,冷却塔按联合变频模式运行,此处仅需安装手动阀即可;如冷却塔风机无变频,此处需设置电动阀,确保冷却塔风水同路。
问题2:冷却塔溢水是什么原因?
各冷却塔进出水支管与冷却水主管连通点位置不同,阻力特性和流量分配不均造成各塔集水盘液面高度不同,严重时出现部分塔溢水而其他塔补水的现象。各塔之间设置平衡管或集水盘连通是很必要的。
问题3:冷却塔的各类阀门应如何调节?
①冷却水供水管阀门:冷却塔联合变频,冷却水小流量时确保各台塔布水器能出水;
②冷却水回水管阀门;
③补水管阀门:调整流量分配,确保各组塔集水盘液位平衡,同步补水或溢水;
④溢水管无阀门;
⑤泄水管阀门:平时常闭。
问题4:冷却塔做降噪处理会不会影响散热效果?
冷却塔降噪工程建议聘请专业声学顾问做方案,并由专业的降噪厂家进行深化设计并实施,深化设计图纸需提交声学顾问和冷却塔厂家审核;
冷却塔与隔声屏的间距、进风百叶的做法及通透率、消声筒的高度等都需经过专业计算确定,以免造成进风效果不好、进排风短路,影响冷却效果,冷却水温高居不下很可能与降噪方案不当有关。
寒冷及夏热供冷地区的广场,在过渡季部分时段,靠冷却塔自然冷却制取冷冻水,而不必开启冷机,仅消耗少量冷却塔风扇电能,制冷能效比高达20以上,以实现节能。
 
免费供冷:
设计任务书:
1、用于免费冷的塔应单独设置。
2、末端盘管的供冷能力,应在所能获得的空调冷水的最高计算供水温度和供回水温差条件下,满足冬季冷负荷的需求,要尽可能提高计算供水温度,延长用冷却塔供冷时间。
3、冷却塔的最高计算供冷水温、温差和冬季供冷冷却塔的使用台数,应根据冷负荷的需求、空调冷水的计算温度、冷却塔在冬季室外气象参数下的冷却能力、换热器的换热温差等因素,经计算确定。
4、设置板式换热器,换热温差选择1度。
5、免费冷源循环泵的规格、台数,应与冬季、过渡季供冷工况相匹配。
解读:
(1) 过渡季广场免费供冷的使用方式
通常过渡季带新风工况的末端如组合式空调机组(主次力店全空气系统)和新风机组(服务于步行街和商铺)按全新风工况运行;
回风工况的末端如吊装式空调机组(步行街)和风机盘管(商铺内)接冷却塔免费供冷制备的冷冻水。
(2) 免费供冷冷却水(一次侧)供水温度和温差的合理选择
过渡季广场内空调负荷较低,冷冻水温度可适当提高,尽量延长免费冷时间,通常冷冻水(二次测)13~15 ℃,即冷却水(一次侧)12~14 ℃ ,应可满足广场供冷需求;
减小冷却水(一次侧)温差,可延长免费供冷时间,节约更多的冷机耗电,但会导致冷却水泵耗电增加,二者权衡,温差取2~3 ℃,取较高的湿球温度切换点是较为经济的。
(3) 免费供冷时冷却泵、冷却塔合理的运行方式
由冷却塔热工特性曲线可知,冷却塔部分流量运行工况可获得更好的特性(更低的冷却水温或更大的温差),可以延长免费供冷时间(更高的湿球温度),因此在开启一台冷却泵时,建议开启全部冷却塔。
(4) 冷却塔免费供冷与冷机供冷切换问题
当室外湿球温度较高,无法满足广场供冷需求时,需要切换成冷机供冷,但此时的冷冻水(二次测)水温较低,需关注是否能达到冷机最低冷却水温度要求。
问题:针对万达广场,哪种免费冷系统能用?
 
群控系统:
问题:冷站群控系统是否合格核心看什么?
加减机功能是否实现是判断冷站群控系统是否合格的核心;加减机进程及时间要关注;
检测方法为通过改变冷冻水供水温度设定值或待广场负荷变化。
 
热源:
热源系统图:
方式一,(夏热冬冷地区):自建热水锅炉直接制备空调热水。
方式二,(严寒、寒冷地区有市政热源):利用市政热源换热制备不同水温热水。
方式三,(严寒、寒冷地区无市政热源):自建热水锅炉,高温热水再换热制备不同水温热水。
标准解读:
标准图设计说明:商管物业换热站内共设空调、预热、车库采暖三个换热系统。
解读:
以严寒地区为例,梳理的空调采暖系统如下:
1、空调热水 (接所有空调末端,60/45 ℃ );
2、地板采暖 (步行街首层公区,60/45 ℃)
3、空调预热 (接组合式空调机组、新风机组、厨房补风,80/60 ℃);
4、散热器 (地下设备房、地上后勤走道、屋面水箱间,80/60 ℃ );
5、热水风幕 (步行街首层,外电内水,80/60 ℃ );
6、暖风机 (地下车库,80/60 ℃)
空调热水、地暖合用一套系统;
空调预热、散热器、热风幕合用一套系统;
地库暖风机一套系统;
每套系统设板换+循环泵(变频)+定压+补水(空调热水二次测定压补水与冷冻水系统合用),设气候补偿器,根据二次测供回水温度和室外温度调节一次侧电动阀开度。
 
管路:
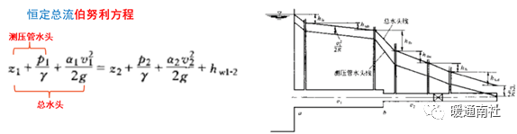
流体力学基础知识:
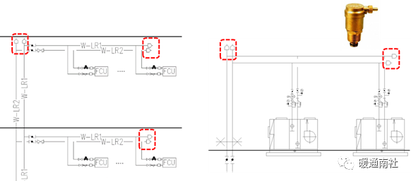
阀门:
设计任务书:
问题:分水器上电动阀常开对吗?
分水器上部分支路与季节相关,如热风幕、地暖;各支路对应业态的营运时间不同,如KTV、影城;如某时段无空调负荷的支路电动水阀仍开启,会造成空调水系统水力失调,部分区域过冷或过热。因此各支路电动阀应根据季节变化和各业态营运时间合理开关。
 
定压补水:
工况1 (广场供冷) — ①;工况2 (内区商铺免费供冷)) — ②;工况3 (广场供热) — ①;工况4 (广场供热,但内区商品免费供冷) — ① & ②;工况5 (仅首层地暖) — ③。
闭式循环水系统的气从哪儿来?
系统补水、泄水检修……
系统积气会怎样?
空调效果差、氧化腐蚀、噪声、水泵气蚀……
怎么办?
管道坡向坡度、水流速、排气装置。
 
末端:
典型空调系统焓湿图:
1、设计任务书
应进行整体风平衡计算,并按风平衡计算结果配置送排风机。控制购物中心总排风量不大于总新风量90%,维持购物中心在空调季节整体为微正压状态。
解读:
2、标准图设计说明
各空调区域均设有排风系统,排风量为该区域空调系统新风量的80%。排风机既能满足空调季节最小新风量的额排风要求,又能满足空调系统最大新风比运行时的排风要求。
解读
 为使各区域达到卫生要求,需确保必要的换气次数,新风进来稀释,并通过排风完成置换;
 过渡季主次力店组合式空调机组全新风运行时,对应的排风机需相应增大排风量,保证室内正压不过大,新风可送入。
风量平衡:
问题1:部分室外新风和排油烟短路,因此不开新风,对吗?
问题2:室外PM2.5超标,怕影响广场内空气质量,因此不开新风,对吗?
问题3:严寒地区冬天担心把空调水管冻坏,因此不开新风和厨房补风,对吗?
以上三个问题不管因为何种原因不开新风,都会造成:
1、室内环境品质不可控(CO2浓度超标);
2、整体负压增大,空调负荷和能耗升高,严寒和寒冷地区广场冬季场内温度失控,餐饮排油烟量大,如不开补风,会造成广场负压严重,问题会更加明显。
解决问题1:新风和排油烟短路,需进行工程整改,确保新排风10米以上间距要求;
解决问题2:大部分组合式空调机组和新风机组设置了中效过滤段,定期更换袋式过滤器有助于去除PM2.5,如不开新风导致场内负压,反而会使室外高污染空气进入;
解决问题3:保持空调预热盘管流速≧0.15m/s且水阀常开,新风不会冻坏空调水管,要求餐饮排油烟风机与补风机联锁启停,补风量不小于排风量的80%。
空调风系统:
1、设计任务书
全空气系统应采用大温差送风,但送风温差不超过10℃(此温差针对夏季)。
解读:送风温差即为送风温度与回风温度(室内温度)的差值。
以夏季为例,空调冷负荷一定的前提下,送风温差越大,送风量越小,越节省风机能耗;但是 (1) 送风量过小,空调的均匀性和稳定性难以保证;(2) 新风量难以保证(节假日客流量大时不建议送风温度设定过低);(3) 低温送风,如吊顶高度较低,冷气会使人感觉不适。因此,送风温差尽量大,但不宜过大,慧云设计标准推荐值如下:
空调风系统:
2、设计任务书
当室外空气焓值高于室内空气焓值时,新风量根据室内CO2浓度控制,但不得高与设计最小新风量,且不得低于设计最小新风量的50%。
X设计标准:
制冷季室外空气焓值高于室内空气焓值时,或采暖季时,根据室内CO2浓度控制自动调节新风阀、回风阀开度。新风阀开度上限为30%,下限为15%(开度上下限可在调试时设定)。
解读:
由于 (1) 节假日实际客流量很可能已超过设计时人员计算量;(2) 可能存在新风取风口与排风短路、新风管漏风、局部新风管路阻力过大等问题,导致实际新风量并未达到设计新风量;(3) 各送风口送风量不均匀等问题,在节假日客流量大的时候,即使按最小新风量(新风阀开度调至上限30%),仍可能存在室内CO2浓度超标情况。因此,建议临时调整BA控制逻辑,将新风阀开度上限调高。
3、设计任务书
CO2传感器选用墙壁型,设在室内靠近回风口处,每个空调机组只设1个。
解读:
目前大部分的主次力店CO2传感器及回风温度传感器均安装在空调机房内组合式空调机组的回风管上,这就造成当机组全新风运行时,回风阀关闭,此时CO2传感器及回风温度传感器测量的是回风管内静止空气的CO2浓度和温度,与室内实际数值差异较大,导致考核数据的失真及对运行策略的误导。建议筹备期工程验收时务必注意此问题。
排风热回收:
1、排风热回收分为显热回收和全热回收,严寒地区适合显热回收,夏热冬冷地区适合全热回收;如从排风中回收的热量大于风机附加的耗电量,即为节能;
2、部分万达广场因绿建要求采用转轮热回收(全热回收)新风机组;
3、评价热回收效果的指标是热回收效率,越高越好;
4、为保证回收效率,新、排风量需保持基本相等,最大不超过1:0.75;
5、热回收新风机组的控制逻辑与普通新风机组基本相同,包括送风温度控水阀开度,送风机与新风阀联锁,送风机与水阀联锁(风机关,夏季水阀关,冬季水阀开50%),机组启停根据室内CO2浓度,机组低温报警及防冻保护;增加新风机与排风机联锁(同时启停、频率保持一致)。

本文来自网络,不代表机电天下立场,转载请注明出处:https://mepbbs.com/archives/12431
上一篇
下一篇

发表回复

您的电子邮箱地址不会被公开。 必填项已用 * 标注

联系我们

联系我们

15515572238

在线咨询: QQ交谈

邮箱: 328758160@qq.com

工作时间:周一至周五,9:00-17:30,节假日休息

关注微信
微信扫一扫关注我们

微信扫一扫关注我们

返回顶部
首页
机电课程
永久会员
资料精选
搜索