《建筑电气工程施工质量验收规范》GB50303-2015
4.1.5 箱式变电所及其落地式配电箱的基础应高于室外地坪,周围排水通畅。用地脚螺栓固定的螺帽应齐全,拧紧牢固;自由安放的应垫平放正。对于金属箱式变电所及落地式配电箱,箱体应与保护导体可靠连接,且有标识。
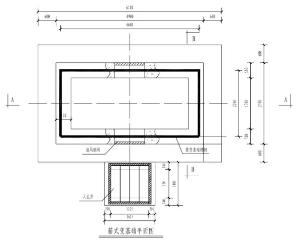
箱式变电所及其落地式配电箱在建筑电气工程中以住宅小区室外设置为主要形式,本体有较好的防雨雪和通风性能,但其底部不是全密闭的,故而要注意防积水入侵,其基础的高度及周围排水通道设置应由设计人员在施工图上加以明确。因产品的固定形式有两种,所以分别加以描述。
对于箱式变电所,电网公司有标准化要求,预装式变电站的典型安装方式如下。
( 注:1.箱变四周需留有1.5米以上的操作通道并水平于箱变。2.箱变外观尺寸仅供参考,具体尺寸以生产厂家提供为准。)