机电天下 安装 抗震支架安装工艺图21张

抗震支架安装工艺图21张

本篇为大家整理了单管、多管、电缆桥架、矩形风管、DN200以上水管及组合的侧向/侧纵向抗震支架安装工艺图,希望能帮到各位。
单管侧向抗震基础方案
单管侧向+纵向抗震基础方案
电缆桥架侧向抗震基础方案A
电缆桥架侧向抗震基础方案B
电缆桥架侧向+纵向抗震基础方案A
电缆桥架侧向+纵向抗震基础方案B
多管共架侧向抗震基础方案A
多管共架侧向抗震基础方案B
多管共架侧向抗震基础方案C
多管共架侧向+纵向抗震基础方案A
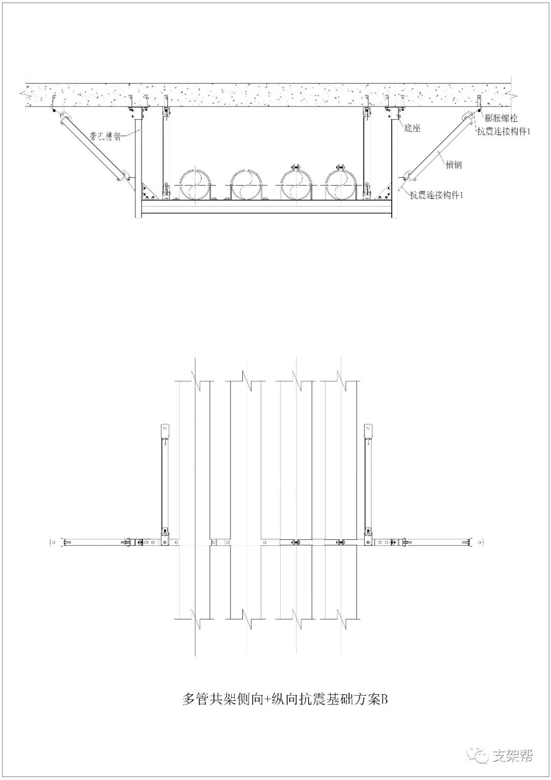
多管共架侧向+纵向抗震基础方案B
多管共架侧向+纵向抗震基础方案C
矩形风管侧向抗震基础方案A
矩形风管侧向抗震基础方案B
矩形风管侧向+纵向抗震基础方案A
矩形风管侧向+纵向抗震基础方案B
DN200以上水管侧向支撑
DN200以上水管侧向与纵向支撑
水管组合侧向支撑(正/俯视图)
水管组合侧向与纵向支撑(正/俯视图)
大跨度多管组合门型侧向抗震支吊架大样图

本文来自网络,不代表机电天下立场,转载请注明出处:https://mepbbs.com/archives/9087
上一篇
下一篇

发表回复

您的电子邮箱地址不会被公开。 必填项已用 * 标注

联系我们

联系我们

15515572238

在线咨询: QQ交谈

邮箱: 328758160@qq.com

工作时间:周一至周五,9:00-17:30,节假日休息

关注微信
微信扫一扫关注我们

微信扫一扫关注我们

返回顶部
首页
机电课程
永久会员
资料精选
搜索