机电天下 安装 空调水系统安装全流程

空调水系统安装全流程

空调水系统的安装:
空调水系统安装包括:冷(热)水、冷却水、凝结水系统的设备、管道及附件的安装施工。
1、管材
空调水系统的管道一般选用:无缝钢管、焊接钢管、镀锌钢管、有机材料管道(硬聚氯乙烯(PVC-U)、聚丙烯(PP-R)、聚丁烯(PB)、与交联聚乙烯(PEX))。
2、连接
A、镀锌钢管:管径小于或等于100mm:螺纹连接;管径大于100mm:法兰或卡箍式专用管件连接。
B、焊接钢管:管径小于或等于32mm:螺纹连接;管径大于32mm:焊接。
C、无缝钢管:均采用焊接。
D、给水钢塑复合管道:管径不大于100mm时可采用螺纹连接,管径大于100mm时采用法兰或沟槽连接。
E:塑料管道:可采用热熔连接、机械锁紧式连接、粘接连接、插接连接。
水系统安装工艺流程图:
安装要注意事项:
A、冷凝水排水管坡度,其坡度宜大于或等于8‰;
B、软管连接的长度,不宜大于150mm;
C、冷(热)媒水、冷却水系统管道机房内总干管得支、吊架,应采用承重防晃管架;与设备连接的管道管架宜有减振措施;
D、当水平支管的管架采用单杆吊架时,应在管道起始点、阀门、三通、弯头及长度每隔15m设置承重防晃支、吊架。
套管制作安装:
1、套管管径应比穿墙板的干管、立管管径大1~2号。
2、套管的长度:过墙套管的长度=墙厚+墙两面抹会厚度
3、套管内应填以松散材料,防止混凝土浇筑是堵塞套管。
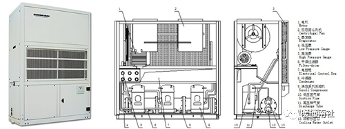
空调设备和配件的安装和连管:
一、冷水机组安装
方法和步骤如下:
1.空间大小:安装时如果允许,请留足够大的空间;
2.安装事要保持整机的水平;
3.要求冰水机的电源要求正确接电源线;
4.保持整机接地;
5.冷却和冰水机管路畅通,冷却管理可以比机器管路稍大一点,考虑后其冷却效果要足够;
6.开机前建议先通电12小时,特别是大型螺杆式冰水机;
7.开机前确定冰水水箱水位充足;
8.开机先开冷却系统;
9.完成开机。
注意事项:
1.进出水口位置正确
2.电源相位正确
3.机器保持水平
4.零线正确,千万别和底线接反
5.长期保持接地,漏电伤人
二、冷却塔的安装
1、冷却塔安装应平稳,地脚螺栓的固定应牢固。
2、冷却塔的出水管口及喷嘴的方向和位置应正确,布水均匀。有转动布水器的冷却塔,其转动部分必须灵活,喷水出口宜向下与水平呈30°夹角,且方向一致,不应垂直向下。
3、玻璃钢冷却塔和用塑料制品作填料的冷却塔,安装应严格执行防火规定。
三、分集水器
(1)分、集水器应在开始铺设加热管之前进行安装。当水平安装时,一般宜将水分器安装在上,集水器安装在下,中心距宜为200mm,集水器中心距地面应不小于300mm。当垂直安装时,分、集水器在下端距地面应不小于150mm。
(2)位置宜设在便于控制、维修、且有排水管道处、如厕所、厨房等处。不宜设于卧室、起居室、更不宜设于贮藏间内、橱柜内、也可设在室内管道井内。
(3)对于半越层的房间,分、集水器应设在高点或高、低区分别设置;对于全越(复式)结构,则应设在上、下层对应的统一干管上。
四、空调机组的安装
1、空调机组的分类:
1)机组结构分类:柜式和组合;
2)安装方式分类:立式、卧式和吊装式。
柜式空调机组,也叫整体式空调机组,是将空气过滤器、表冷器、加热器、加湿器等空气处理部件,整体装在一个立柜式箱体内而形成的机组。
与机组连接的管道应设支架,其重量不应由机组承担。
卧式组合式:
组合式空调机组,也叫装配式空调机组,由不同的空气处理段组成,如新风段、回风混合段加热段等等。各组成段均按设计参数选用设备组装而成,段与段之间可在现场组装。
吊装式:
1)吊杆应有足够的强度;
2)吊杆螺栓应采取防松措施;
3)机组底部应设置隔振垫或采用弹簧减振吊架。
2、空调机组的安装
安装工艺流程
空调机组安装的位置应充分留有余地,以防止机组四周空间不足而造成管道接口操作困难;同时安装空间应充分考虑到机组的检查维修尤其是滤网的拉出清洗或更换。
3、空调机组的配管连接
安装前可不做水压试验。(前提是在合格期限内,表冷器无外表损伤),否则应做水压试验,试验压力为系统工作压力的1.5倍,且不得小于0.4MPa。观测时间为3min,压力下降。
进水管:避震喉、压力表、温度计、蝶阀。
回水管:避震喉、压力表、温度计、电动阀(比例积分阀)、蝶阀。
3、空调机组的配管连接
空调机组应有不小于0.008的坡度坡向凝结水的出口,凝结水管应设≥60mm水封。
风机盘管的安装:
定义:风机盘管是中央空调的末端装置。
组成:热交换器、风机、接水盘、排气阀等。
作用:将室内空气或室内外混合空气通过表冷器进行冷却或加热后送入室内,使室内气温降低或升高,以满足人们的舒适性要求。
风机盘管的构造:
风机盘管控制及工作原理:
其工作原理是机组内不断的再循环所在房间的空气,使空气通过冷水(热水)盘管后被冷却(加热),以保持房间温度的恒定。
风机盘管的安装:
风机盘管吊装:
连接配管:

本文来自网络,不代表机电天下立场,转载请注明出处:https://mepbbs.com/archives/2793
上一篇
下一篇

发表回复

您的电子邮箱地址不会被公开。 必填项已用 * 标注

联系我们

联系我们

15515572238

在线咨询: QQ交谈

邮箱: 328758160@qq.com

工作时间:周一至周五,9:00-17:30,节假日休息

关注微信
微信扫一扫关注我们

微信扫一扫关注我们

返回顶部
首页
机电课程
永久会员
资料精选
搜索