机电天下 电气 还在为负荷计算头疼?一文帮你搞定算不清的电气负荷计算

还在为负荷计算头疼?一文帮你搞定算不清的电气负荷计算

三相不平衡负荷的计算原则

单相负荷尽量平均分配到三相上。
当无法使三相完全平衡时,宜取最大一相负荷的三倍作为等效三相负荷,并以此等效三相负荷,作为计算相应回路中的电流和选配相应回路的开关、导体等设备的依据 不包括三相电力变压器容量的选配 。
当单相负荷的总计算容量小于计算范围内三相对称负荷总计算容量的15%时,应全部按三相对称负荷计算;当超过15%时,应将单相负荷换算为等效三相负荷,再与三相负荷相加。
三相负荷总容量 (WP1~WP4):
35+25+2.2+3=65.2KW
单相负荷总容量(WP5~WP6):
0.6+0.6=1.2KW
1.2/65.2=0.018
应全部按三相对称负荷计算。
本配电箱的设备容量为:65.2+1.2=66.4KW
当单相负荷的总计算容量小于计算范围内三相对称负荷总计算容量的15%时,应全部按三相对称负荷计算;当超过15%时,应将单相负荷换算为等效三相负荷,再与三相负荷相加。
三相负荷总容量(WP1~WP2):
13.5+13.5=27KW
单相负荷总容量(WL1~WL5):
0.5+0.5+1+1+2.0+1.0=6KW
6/27=0.22>15%
所以应将单相负荷换算为等效三相负荷,再与三相负荷相加。
图中单相负荷:
L1相=0.5+1.0=1.5KW
L2相=0.5+2.0=2.5KW
L3相=1.0+1.0=2.0KW
等效三相负荷为最大相的三倍,即7.5KW
本配电箱的设备容量为:27+7.5KW=34.5KW

当单相负荷的总计算容量超过15%时,应将单相负荷换算为等效三相负荷,再与三相负荷相加。

需要系数法 住宅工程计算实例

配电柜系统

竖向配电干线系统图

1AN-1柜中WLM1回路计算

本干线三相负荷平衡,可以按三相计算:
Pe=26*6=156KW
Kx=0.7(三相24户)
Pjs=109KW
cosφ=0.9
ljs=184A
WLM2与WLM1回路相同

1AN-1柜中WLM3回路计算

本干线三相负荷平衡,按三相计算:
Pe=26*3=78kW
Kx=0.95(三相12户)
Pjs=74Kw
cosφ=0.9
ljs=124A

1AN-1柜的负荷计算

三根干线均为三相负荷平衡,配电柜的负荷也是三相平衡的。
按三相公式计算:
Pe=156+156+78=390KW
Kx=0.5(三相60户)
Pjs=195KW
cosφ=0.9
ljs=328A
这时候,总进线可整定350A。但是,当地供电局规定,配电柜进线的整定电流不宜大于320,故取系数0.45(此系数介于通用值与可采用值之间)。整定320,接近于计算电流.
每根干线可以负担六层,保证干线满负荷,一面柜子只能承载两根干线,则需用五面配电柜。(10根干线)
调整局部干线负荷,使得配电柜子满负荷,则需用四面配电柜。(12根干线)

 

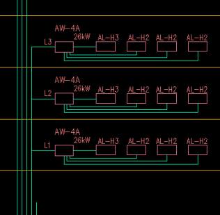
1AN-4柜中WLM1回路计算

本干线三相负荷不平衡,取最大一相负荷的三倍作为等效三相负荷
Pe=26*2*3=156KW
Kx=0.7(单相8户)
Pjs=109Kw
cosφ=0.9
ljs=184A
(最大相为L1)
当无法使三相完全平衡时,宜取最大一相负荷的三倍作为等效三相负荷,并以此等效三相负荷,作为计算相应回路中的电流和选配相应回路的开关、导体等设备的依据不包括三相电力变压器容量的选配。

1AN-4柜中WLM2回路计算

本干线三相负荷不平衡,取最大一相负荷的三倍作为等效三相负荷
Pe=24*2*3=144KW
Kx=0.7(单相8户)
Pjs=101KW
cosφ=0.9
ljs=170A
(最大相为L3)

1AN-4柜中WLM3回路计算

本干线三相负荷平衡,可以按三相算,也可以按单相计算。下面按三相计算:
Pe=24*3=72KW
Kx=0.95(三相12户)
Pjs=68KW
Cosφ=0.9
ljs=115A

14AN-4配电柜负荷计算

因为三相负荷不平衡,不能笼统地按三相负荷计算。先算三根干线:
WLM1:L1 26+26=52,L2=L3=26
WLM2:L1=L2=24,L3=24+24=48
WLM3:L1=L2=L3=24
再算WLM4~WLM5
Pe=10+10=20
Kx=1
Pjs=20
合计:L1=52+24+24=100
L2=26+24+24=74
L3=26+48+24=98
取最大相的三倍等效成三相负荷:
Pe=100*3=300KW
Kx=0.55(单相16户)
Pjs=165KW
合计整个柜子:
Pjs=165+20=185
Kx=185/320=0.58
cosφ=0.9
ljs=311A

要点:尽量保持三相平衡

消防时负荷:
Pe=240KW
风机12台(33+33+24)*0.7=63
电梯2台(18+18)*1=36
水泵4台(7.5*4)*0.9=27
应急照明:15+15+3=33
Pjs=63+36+27+33=159Kw
平时负荷:
Pe=240
风机6台24*0.8=19.2
电梯4台(18+18+18+18)*0.8=57.6
弱电室及排水泵15*1=15
应急照明(15+15+3)*0.5=16.5
Pjs=19.2+57.6+15+16.5=93.3

小结

单相负荷尽量平均分配到三相上,不平衡时,取最大相负荷的三倍作为等效三相负荷。
当单相负荷的总计算容量小于计算范围内三相对称负荷总计算容量的15%时,应全部按三相对称负荷计算;当超过15%时,应将单相负荷换算为等效三相负荷,再与三相负荷相加。
配电柜的负荷计算,应包括备用负荷。因为末端互投装置为自动切换。
考虑不同的使用时间和用途,应满足最大需求量的情况

本文来自网络,不代表机电天下立场,转载请注明出处:https://mepbbs.com/archives/23393
上一篇
下一篇

发表回复

您的电子邮箱地址不会被公开。 必填项已用 * 标注

联系我们

联系我们

15515572238

在线咨询: QQ交谈

邮箱: 328758160@qq.com

工作时间:周一至周五,9:00-17:30,节假日休息

关注微信
微信扫一扫关注我们

微信扫一扫关注我们

返回顶部
首页
机电课程
永久会员
资料精选
搜索