从管道敷设角度分为水平支吊架及垂直支架(图示)
从功能上分为固定支架、滑动支架、导向支架、滚动支架(图示)
支吊架设计的重点在直径大于300(大型管道)、多管道布置密集处,因荷载较大或管线布置的复杂性,在规范、图集中未提供标准做法,须有结构设计能力的专业人员计算并复核,下面介绍最不利管线支吊架位置,作为设计、检查、验收及加固的重点。
A.固定支架的形式(GB50738-2011)

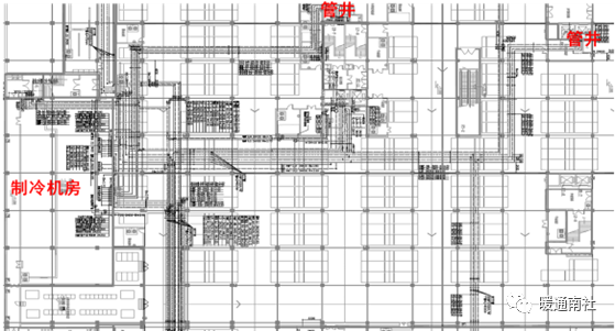
大直径管道及管道集中部位主要分布在地下室制冷机房、消防泵房、生活水泵房、换热站等部位,管道从机房出来后,水平吊挂在楼板下方,分段通往到竖向管井,通过竖向管井至地上各楼层。从机房到管井的管道水平路就是支架的最不利部位(冷冻机房中通往冷却塔的冷冻水管直径一般在500~800mm,应重点复核)。此处管线提供放大图。

支吊架设计计算检查及复核:
支吊架结构计算模型:
1.已施工项目,支吊架复核应在核对图纸前提下,现场实际勘察对管道布置及支吊架信息进行复核,避免设计与实际存在偏差
2、信息记录
1)管道型号、直径、保温
2)管道与支吊架定位关系
3)支吊架型式、构件规格
4)支吊架与主体连接方式,每根吊杆螺栓数量、直径、布置
5)埋板(如有)规格
6)支吊架间距

支吊架设计要点:
1、支吊架计算荷载取值
1)单管荷载取值
G=1.35×1.1×XG1XL
G—支吊架计算荷载
G1=管道自重+满管水重+保温层重+支吊架自重(KN/m)
L—支吊架跨度(m)
注:保温容重、厚度以设计或现场实际情况为准。
2、支吊架拉杆荷载取值-F
支吊架多根拉杆荷载计算时,不应取平均值,中间杆受力最大。

3、吊架拉杆膨胀螺栓数量取值
n=F/τ
n—拉杆膨胀螺栓数量
F—支吊架拉杆承载力(KN)
τ—单根膨胀螺栓抗剪/抗拉承载力(KN),(见附表2)
4、吊架钢架结构计算要求
1)钢结构型钢应为热轧型钢,不允许使用冷弯钢,已施工的根据现场情况取值;
2)钢结构抗弯取值xx、抗拉取值xx;
3)计算拉杆拉力、托梁抗弯、抗剪强度及变形挠度,应考虑侧向扭转影响。
附表1满水状态下管道每延米重量G

附表2:锚栓(膨胀螺栓)抗拉、抗剪荷载取值

注:1)支吊架埋板位于梁侧,取抗剪荷载;
2)支吊架埋板位于板底,取抗拉荷载;
3)需核对锚栓(膨胀螺栓)出厂检测报告所提供的力学性能(抗拉抗拔),同时结合现场拉拔试验和剪切试验。
3、算例:

锚栓设计:每根拉杆采用6M20。
计算:
1)查表A,直径600mm的冷却水管,满水重量为450kg/m,单根管道落在支架上的荷载为(支架自重忽略):
F=1.35×1.1×450×8.4=5600kg=56kN
该支架承受的总荷载为56×2=112kN
2)查表B,梁侧锚栓抗剪,每个M12锚栓所能承受抗剪荷载为3.14kN,56/4=14kN
3)结论:支架锚栓抗剪严重不足。
加固方案必选:
加固原则:
1、支吊架变形较大判定为不具备继续承载能力,原位附近增加支吊架;
2、轻微变形支吊架,考虑承载力一定折减后,增设支吊架卸荷;
3、直径在300以上或多管道重型水管原则不采用吊架形式,尽量改为落地支架;
4、吊架螺栓设置在板下时,易出现混凝土被整体拔出的破坏形式,重型支吊架不允许固定在板下,应固定在结构梁侧面;
5、支吊架螺栓数量不足或托梁强度不足的,原则不在原支吊架上增设拉杆,以增加新吊架,加密支吊架间距卸荷方式解决。
施工管控要求:
1)材料–螺栓、埋件、型钢;
2)支架焊接质量;
3)支架防腐处理;
4)支架安装位置要求–间距、转角、防晃;
5)螺栓试验、施工、检查及验收;
6)冷热水管垫木;
7)冷热水管变形措施
(1)制作管道支吊架的槽钢或角钢,必须采用热扎型钢,不得采用冷弯型材等。
(2)选用的锚栓(膨胀螺栓),须由正规厂家生产,产品合格证及检测报告齐全。
(3)选用的焊条为E43型,须由正规厂家生产,产品合格证及检测报告齐全。
2、埋件
(1)支吊架预埋(后锚固)件,位置应正确,牢固可靠,埋入结构部分应除锈除油污,不应刷漆,外露部分应做防锈防腐处理。
GB50738-20117.1.2和7.1.4
(2)后锚固埋件埋板应采用机械开孔,开孔尺寸应与螺栓相匹配(一般为孔径=螺栓直径+2mm);不允许长条孔,螺栓中心距埋板边不小于2d(d—螺栓直径)。
GB50738-20117.1.3 7.2.5和7.2.6

例:采用M12的螺栓,埋板的开孔(圆孔)直径为14mm。
(3)采用膨胀螺栓固定支吊架时,应符合膨胀螺栓使用技术条件的规定,螺栓至混凝土构件边缘的距离不应小于8倍的螺栓直径;螺栓间距不小于10倍的螺栓直径。GB50738-20117.3.5
3、绝热衬垫和穿墙穿楼板做法
(1)空调风管和冷热水管的支吊架选用的绝热衬垫厚度不应小于管道绝热层厚度,宽度应大于支吊架支承面宽度,衬垫应完整,安装后无变形,与绝热材料之间无缝隙。采用木质材料作为绝热衬垫时,应进行防腐处理。
GB50738-20117.1.3
(2)管道穿墙体或楼板处应设钢制套管,管道接口不得至于套管内,钢制套管应与墙体饰面或楼板底部平齐,上部应高出楼层地面20mm~50mm,且不得将套管作为管道支撑。当穿越防火分区时,应采用不燃材料进行防火封堵;保温管道与套管四周的缝隙应使用不燃绝热材料填塞封堵。
GB50243-20169.2.2
4、支吊架制作和安装
(1)支吊架制作完成后,应用钢刷纱布除锈,再进行刷漆处理。GB50738-20117.1.4 。
(2)支吊架制作时,型钢采用机械切割,切割边缘处应打磨处理。GB50738-20117.1.3
(3)支吊架焊接应采用角焊缝满焊,焊缝高度应与较薄焊接件厚度相同,焊缝饱满、均匀,不应出现漏焊、夹渣、裂纹、咬肉等现象(支吊架与埋板焊接时同理7.3.5)。采用圆钢吊杆时,与吊架根部焊接长度应大于6倍的吊杆直径,双面焊。GB50738-20117.2.8
(4)支吊架安装间距限值:
水平安装的水管:

垂直安装的水管:

(5)支吊架安装应平整、牢固,与管道接触紧密。支、吊架与管道焊缝的距离应大100mm。与设备连接的管道,应设独立的支吊架,并应有减振措施(柔性连接)。GB50738-20117.3.7
(6)沟槽连接的管道(主要为消防水管),水平管道接头和管件两侧应设置支吊架,支吊架与接头的间距不宜小于150mm,且不宜大于300mm。GB50738-20117.3.7

(7)设有补偿器的管道应设置固定支架和导向支架,其形式和位置应符合设计要求。GB50738-20117.3.7

管井内固定支座(火箭座):

B.导向支架:在滑动支架两侧的支架横梁上,每侧焊制一块导向板(扁钢或角钢),导向板的长度与支架横梁宽度相同,导向板与滑动支座间应有3mm的间隙。

C.防晃支架:避免管道和设备的震动或位移而产生晃动。吊架采用角钢或槽钢制作,与吊架根部埋件和横担焊接牢固。
(8)冷(热)媒水、冷却水系统管道机房内总、干管的支吊架,应采用承重防晃管架,与设备连接的管道管架宜采取减振措施。当水平支管的管架采用单杆吊架时,应在系统管道的起始点、阀门、三通、弯头处及长度每隔15m处设置承重防晃支吊架。GB50243-20169.3.8

5、补偿器
(1)补偿器的形式:几字形补偿器、波纹管补偿器(大商业常用)、填料式补偿器。
(2)补偿器的作用:用于补偿管道受温度变化而产生的热胀冷缩。(3)补偿器的补偿量和安装位置应符合设计图纸要求,并应根据设计计算的补偿量进行预拉伸或预压缩。补偿器一端的管道应设置固定支架,位置与设计图纸核对,并应在补偿器预拉伸或预压缩前固定。补偿器的另一端设置滑动导向支架,管道滑动轴心应与补偿器轴心相一致。(检查预拉伸或预压缩记录)GB50243-20169.2.5
(3)波纹管膨胀节或补偿器内套有焊缝的一端,水平管路上应安装在水流的流入端,垂直管路上应安装在上端;应与管道保持同心,不得歪斜和周向扭转。GB50243-20169.2.5
(4)填料式补偿器应与管道保持同心,不得歪斜;应按设计文件要求的安装长度及温度变化,留有5mm剩余的收缩量。两侧的导向制作应保证运行时补偿器自由伸缩,不得偏离中心。GB50243-20169.2.5

(5)空调水系统调试完毕后,需及时将冷冻水管的补偿器限位螺栓的内螺母松开,预留的变形量现场测量值与图纸要求值进行核对。

标准做法实施案例:
1、大商业地下室支架安装(空调水管)


大商业地下室支架安装(给排水及消防水管):

消防泵房支架安装(消防水管):

本文来源于互联网,暖通南社整理编辑于2022年7月14日。

