泵房是安装水泵、电动机、水泵控制柜及其他辅助设备的建筑物,是水泵站工程的主体,其主要作用是为水泵机组、辅助设备及运行管理人员提供良好的工作条件。不同的泵房形式影响并决定泵站进、出水建筑物的形式及布置。合理设计泵房,对节约工程投资,延长设备使用寿命,保证安全和经济运行都有重要意义。
泵房的安装在整个水施工程中是重中之重,是一个安装公司在一个工程中的技术的体现所在地,同时也是系统的源头,因此,泵房的安装工艺就是一个公司在工程里的脸面,泵房的工艺做得好就是公司的标志。
给水泵房主要是给自来水加压用的,比方可以将水抽到水塔或者高层建筑的屋顶水箱。因为一般城市供水系统的水压只有3kg/cm2.所以高层房屋用水就需加压。保证高区用水压力满足使用要求。
消防泵房主要是担负消防供水任务的水泵房均称为消防水泵房。消防水泵房,按作用分为取水泵房、送水泵房和加压泵房;按使用目的分为生活、生产、消防合用泵房(如水厂内),生产、消防合用泵房(如工业企业内部),生活、消防合用泵房(如民用建筑物内)、独立的消防水泵房(如油罐区)。为了保证火灾时管道内达到灭火区域的压力要求,保证灭火功能。
污水泵房主要是将上游来水提升至后续处理单元所要求的高度,使其实现重力自流。它的工作特点是它所抽升的水是不干净的,一般含有大量的杂质,而且来水的流量随时都在变化。
2.安装区域垃圾或废弃物清理干净并有足够的加工制作空间,
技术准备是施工准备工作的核心。由于任何技术的差错或隐患都可能引起质量和人身安全事故,造成经济、财产和生命的巨大损失。因此必须认真地做好技术准备工作。具体内容如下:
1)审查设计图纸是否完整、齐全,设计图纸和资料是否符合国家相关规范和满足本项目要求;
2)认真熟悉审查设计图纸、有关的设计资料、设计依据、主体施工单位移交的相关资料、施工验收规范及有关技术规定;
3)审查设计图纸与设计说明在内容上是否一致,以及设计图纸与其各组成部分之间有无矛盾和错误;
4)审查总平面图与其立面图、大样图在几何尺寸、坐标、标高、说明等方面是否一致,技术要求是否正确;
5)审查设计图纸中的工程复杂、技术要求高和施工难度大的分部分项工程。
编制前我公司组织专家进行初步图纸会审,针对本工程的自身难度特点及招标文件的会审通过后由组织专业技术人员进行施工组织设计方案的编制。
为确保施工质量,公司要求所有涉及或者是参与到本工程施工的工程技术及管理人员必须充分了解和掌握设计图纸的设计意图、室内装饰工艺的特点及安装工艺流程要求,为此,必须做以下三级交底工作:
A、设计人员向参与该工程的项目部技术人员、施工员和质检员进行技术交底;
B、项目部技术人员和施工员、质检员向参与该工程的施工队的队长和施工员进行技术交底;
C、施工队长和施工员向所有参与该工程的施工人员进行技术交底。根据设计图纸及技术交底,检查、核对预留孔洞大小尺寸是否正确,将管道坐标、标高位置画线定位。质量控制措施
c)地脚螺栓的螺纹应完好无损、无卡涩现象,表面并且涂有二铬化钼;
3.1.2基础外观尺寸允许偏差应符合设计要求,并符合下表规定:
a)焊接环境温度应符合:Q235F管道焊接环境温度不得低于-20℃;1Cr18Ni9Ti管道焊接温度不得低于5℃。
b)风速:手工电弧焊时<8m/s,气体保护焊时<2m/s。
3.2.2应根据评定合格的焊接工艺指导书选用焊材,或按公司焊接工艺评定要求选用焊材,Q235F工艺评定编号PQR-006-1998选用J427焊材和H08Mn2SiA焊丝,1Cr18Ni9Ti工艺评定编号SWsVII-1-055-1996选用A132焊条和H1Cr18Ni9Ti焊丝。施焊前应核对焊材型号,避免误用。
3.2.3焊工应持有有效的资格证书,并在合格项目内从事管道焊接作业。
3.3.1自由管段长度允许偏差为±10mm,封闭管段长度允许偏差为±1.5mm。
3.3.2管道焊缝的设置,应便于焊接及检验,并应符合下列要求:
a)除采用无直管段的定型弯头外,管道焊缝的中心与弯管起弯点的距离不应小于管子外径,且不小于100mm;
b)管道环焊缝与支、吊架边缘的净距离不应小于50mm;
c)除定型管件外,直管段两环缝间距不小于150mm,且不小于管子外径;其他任意两焊缝间的距离不小于50mm;
d)在焊接接头及其边缘上不宜开孔,否则被开孔周围一倍孔径范围内的焊接接头,应100%进行射线检测;
e)管道上被补强圈或支座垫板覆盖的焊接接头,应进行100%射线检测,合格后方可覆盖。
A图适用于隔震要求比校高的场所,B图适用于一般场所。

减震要求时,立式水泵安装时参照以上形式,并排立式水泵应采用同一槽钢基础
1.此标准按水泵为一备一用,两台污水泵轮换工作的情况;
2.管道的连接方式可采用螺纹连接或沟槽连接,无论采用何种连接方式,阀门选择方式及安装均应相应一致。例如采用螺纹连接,则阀门采用螺纹连接。建议排污泵出水管直径≤80mm时采用螺纹连接,出水管直径≥100mm时采用沟槽、焊接连接。
3.潜污泵可采用软接及硬接方式进行安装,软接采用织物增强橡胶软接管连接,与水泵和管道连接处采用不锈钢连接卡箍,每边不少于两个。
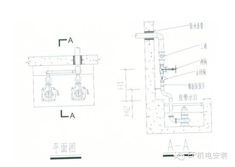
支架掌板必须在天面防水层施工前固定在混凝土屋面上,PVC 短管套在天面完成面上方,内填水泥砂浆,水泥墩顶层表面需有5% 的泄水坡度并油沥青油。
1、补强板厚度为与木管壁厚的50%~70%,但不小于4mm;连接后,补强板外缘与柱管外缘距离为30~60mm;
2、当补强板和弯头可直接焊接时,采用A图施工,当补强板不可直接焊接时,采用B图施工;
3、落地掌板需设置圆柱水泥墩,水泥护墩顶层需有5%的泄水坡度并油沥青油
尺寸标准:管道直径为DN100~DN150时,柱管直径D=50mm;管道直径为DN200~DN250时,柱管直径D=65mm。
5.泵房阀门安装要求: 阀门安装之间必须安装一节短管