本洁净包中包含全新风系统、净化空调系统、排风系统,其均采用镀锌钢板风管,传统的角钢法兰工艺,能够保证风管的质量。
A.低、中压风管钢板厚度
B.高压风管钢板厚度
2、金属矩形风管法兰及螺栓规格(mm)
3、风管加工工艺流程

![]()
A. 选材,所用铁皮的厚度若设计无要求,按照规范执行。
B.下料剪切。根据加工单的尺寸进行下料,剪切前角钢表面必须进行除锈镀锌处理并复核尺寸,以免有误。
(a)形法兰由四根角钢组焊而成,下料时要注意使法兰的长边夹住短边,法兰长边两端倒角45°,且焊成的法兰内径要比风管外径大23mm;
(b)下料调直后为法兰配铆钉孔,孔距为不大于120mm均布,四角的铆钉孔应尽量靠近转角,一般不应大于30mm;
(c)同规格的法兰角钢在钻孔后用模型法兰紧固进行点焊成型后再焊接牢固;
(d)法兰螺栓间距应≤100mm,长边端部必须配有螺栓孔,且同一规格法兰的螺孔布置必须严格一致,确保其互换性;
(e)洁净风管法兰四角焊接处采用环氧富锌漆进行喷涂。
D.铆接法兰。风管与法兰铆接前要认真校核规格,铆接后要做到风管折角平直、端面平行。翻边宽度 67mm,翻边平整、宽窄一致。
5、风管加工工艺流程

![]()
本校平机使用时要注意卷板的进料方向(如图),同时一定要调整开卷机,使之中心轴水平,否则不能取得满意的校平效果。
b.风管下料时除了预留出相应的咬口量外,还必须预留出组合法兰成型量(根据法兰成型机调整,本机为65mm)按下图尺寸倒角。

![]()
(c)采用单片或双片式下料时,应将板材在折方线的组合法兰成型留量范围内切断(如上图),再进行后续工作。
a.矩形风管,通常都需要进行压筋加固,压筋线应尽量与法兰线方向平行。
按照规范,洁净风管不允许采用内加固只能采用外加固,且不能在风管内壁形成死角,以免在死角处积尘。本工程拟将长边大于等于1250mm的风管采用角钢外加固。具体加固方案如下:
(1)清洗剂为中性,不对人体和风管材料产生任何有害作用;清洗用水无酸碱和腐蚀性。
(2)风管清洗工机具要”专人专用”,不能用于除清洗风管外的其它作业,更不能拿到清洗间外,以免造成污染。
(3)清洗工具不带尘不产尘(如掉渣、掉毛及使用后产生痕迹等)
(1)清洗间地面满铺3mm厚橡胶板,保护镀锌钢板的镀锌层不被破坏。
(2)清洗间内实现正压环境,保证风管清洗质量,如果外部周围环境产尘较多,则送风机送风口加装无纺布等过滤装置。
(3)清洗间内实行流水线作业,避免人流来回走动产生二次污染。
风管清洗后用白棉布擦拭风管表面及内壁,不出现污迹为合格。
(1)风管密封要在风管正压侧打胶,即:正压系统在风管内侧打胶,负压系统在风管外侧打胶,风管的法兰转角处内外都打胶。
(2)打胶要平整、严密,不出现打胶凹凸不平、漏打等不合格现象。
(3)风管清洗打胶完成后,进行风管端口密封,密封应把整个法兰边包起来,避免法兰边污染。如果风管在运输途中密封膜破损,则风管要重新清洗。
加工场地应包含风管加工区,风管清洗区,风管质检区,风管密闭区,清洗并密闭好的风管的库存区。
本项目风管加工厂拟选择在场内布置,法兰加工厂拟选择在场外加工好后运至风管加工厂后进行拼装铆接等工作。
● 严格按照指定场地位置、使用面积和使用时间进行有效布置。
● 在满足施工生产需要的前提下,充分考虑环境保护、文明施工、尽量减少噪音。
● 现场风管加工厂应结合实际场地情况、生产加工工序及加工设备的布置情况进行合理布局,力求加工场地的美观、安全、合理、实用。
● 充分利用现有条件,风管制作过程在相对封闭、干净的条件下,对风管质量进行严格管控。
● 场地布置时充分考虑各种边界条件,在满足各种边界条件的基础上进行场地布置。
● 场地布置首先要满足施工生产的需要,人员和材料进出场是场地的核心。
● 根据场地分阶段提供各阶段的施工要求,施工场地分阶段布置,整个加工厂地分为:镀锌板堆放区、下料区、拼装铆接区、法兰铆接区、风管清洗区、打胶密封区,成品堆放区。
● 供电系统必须满足施工生产需要,同时考虑安全、经济、供电系统按现场条件合理布置。
各岗位人员各司其职,确保每一工序安全、高质量的完成。

![]()
(1) 安全员要经常检查、督促班组人员遵守安全生产制度和操作规程。做好设备、工具等安全检查、保养工作。及时向上级汇报班组的安全生产情况。做好原始资料的登记和保管工作。
(2)督导工人在生产、工作中要认真学习和执行安全技术操作规程,遵守各项安全操作规章制度。爱护生产设备和安全防护装置、设施及劳动保护用品。一旦发现不安全情况,及时汇报,迅速予以排除。
(3) 对新进工人进行安全生产教育才能准其进入操作岗位。
(4)对从事电气、电焊等特殊工种人员必须进行专业安全技术培训,经有关部门考核并取得合格操作证后方能上岗。对特殊工种的在岗人员,需进行经常性的安全教育。
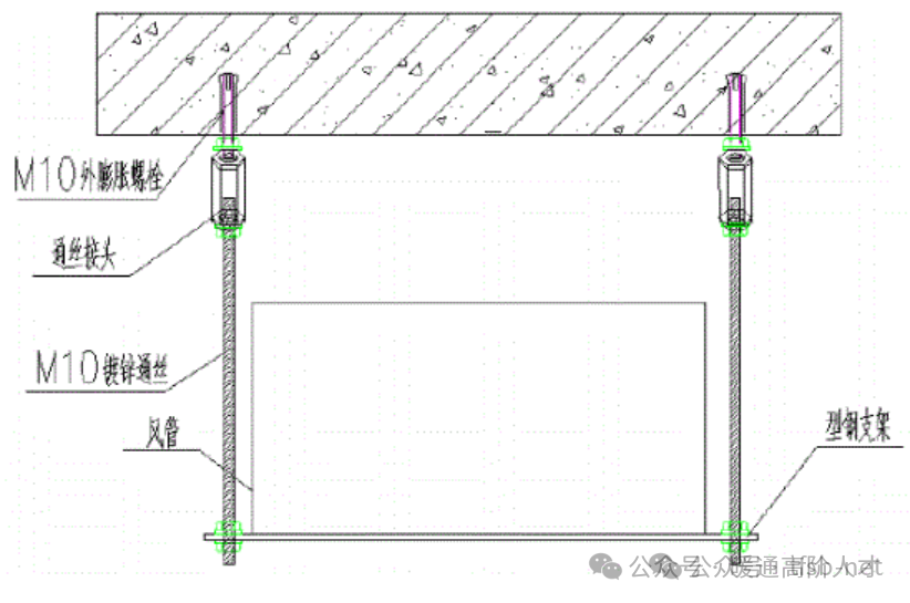
支吊架采用膨胀螺栓固定,吊杆用热镀锌通丝,设置于保温层的外部,力求灵活,快捷,外形美观,支吊架不得设置在风口、阀门、检视门等处;吊架应能调节,吊架不得直接吊在法兰上。当水平悬吊的主、干风管长度超过20m时,应设置防止晃动的固定点,每个系统不应小于1个。
● 风管支架托架选材:根据风管尺寸核算每套支架的受力情况,然后选用型材规格,所有托架材料为热轧镀锌等边角钢或相应型号镀锌槽钢。
● 风管支架的托架下料:根据风管口径确定托架的长度,托架长度比风管边长长160mm。
● 支、吊架的下料宜采用机械加工,采用气焊切割口应进行打磨处理,并对切断面采用环氧富锌漆进行防腐处理。不得采用电气焊开孔或扩孔。
● 吊杆应平直,螺纹应完整、光滑。吊杆加长可采用以下方法拼接:
● 金属风管(含保温)水平安装时,其吊架的最大间距应符合下表要求:
● 支吊架不应设置在风口处或阀门、检查门和自控机构的操作部位,距离风口或插接管不宜小于200mm。
● 保温风管不能直接与支吊架接触,应垫上坚固的隔热材料、其厚度与保温相同,防止产生“冷桥”。
● 采用M10的外膨胀螺丝使风管支架的吊点或支撑点与建筑结构固定。
● 通丝吊杆采用通丝接头进行连接,通丝接头两端分别加一个螺栓以固定通丝,通丝接头长度3.5cm-5cm。

![]()
支吊架安装→风管转运就位→风管地面组对→风管起吊→风管标高调整及支托安装→风管连接→松钩。
(1)吊装前先进行风管验收,由我单位进行自检,自检合格后再请监理、业主现场验收,并标上合格标签
(2)根据图纸尺寸进行支架放线,载入吊杆,将支托的一边用螺帽固定;
(4)将验收合格的风管运至吊装场地,风管及管件应有统一正确安装顺序编号及编号图:
(5)起吊风管离地200-300mm,仔细检查滑轮受力点和捆绑风管绳索、绳扣是否牢靠,风管重心是否正确,确认安全后,再继续吊装。风管放上支、吊架后,将所有托架横担和吊杆连接好,确认风管稳固后,方可解开绳扣:
(6)对于场地限制,不能整体吊装时,可将风管分节用上述方法进行吊装,然后对正法兰逐节安装。
● 风管安装时,根据施工现场情况,可以在地面连成一定长度,采用吊装的方法就位,也可以把风管一节一节地放在支架上逐节连接。
● 吊架安装完毕,经确认位置、标高无误后,将风管和部件按编号预排。
● 为保证法兰接口的严密性,组装时新风管法兰边上须粘贴厚5mm的闭孔海绵,风管连接的密封材料应满足系统功能技术条件、对风管的材质无不良影响,并具有良好气密性。
(1)将风管法兰表面的异物和积水清理掉,并擦干净;
(2)从法兰一角开始粘贴胶带,胶带端头应略长于法兰;
(3)沿法兰均匀平整地粘贴,并在粘贴过程中用手将其按实,不得脱落,接口处要严密,各部位均不得凸入风管内,沿法兰粘贴一周后与起端交叉搭接,剪去多余部分:
(4)法兰垫料的接口形式符合以下规定,普通风管采用对接接口和梯形接口(图8.1.5-1),应在对接部位涂密封胶;洁净空调系统风管的法兰垫料接口应采用阶梯形或榫型(图8.1.5-2),并涂抹密封胶。
法兰密封垫接口处理
● 矩形风管装立面与吊杆的间隙不宜大于150mm,吊杆距风管末端不宜大于1000mm,水平弯管在500mm范围内设置设置一个支架,支管距主管1200mm 范围内设置一个支架。
● 连接好的风管,检查其是否平直,若不平应调整并找平找正,直至符合要求为止。
● 风管穿过防火墙或楼板,应设预埋管或防护套管,其钢板厚度不应小于1.6mm,风管与防火套管之间,应用不燃且对人体无害的柔性材料封堵。
● 防火阀、排烟阀的安装方向、位置应正确,防火分区隔墙两侧的防火阀,距墙表面距离不应大于200mm,防火阀安装时应将易熔片处于迎风侧在防火阀易熔片侧设置检查门,易熔片应在系统成型后,试验前装设,以免人为损坏或滑落,防火阀种类较多,性能各异,应耐心区分。
安装质量:风管安装后,水平风管的不平度允许偏差,每米不大于3mm总的偏差不大于 10mm,立管的垂直度允许偏差每米不大于2mm,总偏差不大于 10mm。

![]()
风管安装