
1)总述
配电房是供电系统中的关键部位,我们平时说的配电房其实是对各种变配电所、配电室的统称。35kV变配电所包括35/10(6)kV变电所和35/0.38kV变电所 。10(6)kV配电所(简称配电所),有些地方又称开闭所,用户单位内的配电所常带有10(6)kV变电所;10(6)kV变电所(简称变电所),指高压侧电压为10(6)kV的变电所,在工业企业内又称车间变电所,变电所一般由变压器,高压室,低压室等部分组成。
2)变配电所选址
1.尽量接近负荷中心,以降低配电配电系统的电能损耗、电压损耗和有色金属消耗量;
2.进出方便,特别是要便于架空进出线;
3.接近电源侧,特别是工厂的总降压变电所和高压配电所;
4.设备运输方便,特别是要考虑电力变压器和高低压成套配电装置的运输;
5.不应设在有剧烈振动或高温的场所,当无法避开时,应有防振和隔热的措施;
6.不宜设在多尘或有腐蚀性气体的场所,无法远离时,不应设在污染源的下风侧;
7.不应设在厕所、浴室和其他经常积水场所的正下方,且不宜与上述场所相贴邻;
8.不应设在有爆炸危险环境的正上方或正下方,且不宜设在有火灾危险环境的正上方或正下方。
9.不应设在地势低洼和可能积水的场所。
10.配电所一般为独立式建筑物,也可以与所带10(6)kV变电所一起附设于负荷较大的厂房或建筑物。
3)变配电所的布置
①布置紧凑合理,便于设备的操作、搬运、检修、试验和巡视,还要考虑发展的可能性。
②适当安排建筑物内各房间的相对位置,使配电室的位置便于进出线。
③尽量利用自然采光和自然通风,变压器室和电容器室尽量避免西晒,控制室尽可能朝南。
④配电室、控制室、值班室等的地面宜高出室外地面150~300mm,当附设于车间内时,则可与车间的地面相平。
⑤10kV配变电所宜单层布置,当采用双层布置时,变压器室应设在底层,并且二层的配电室需留有吊装设备的吊装孔,吊装平台等。
⑥不带可燃性油的高、低压配电装置和非油浸的全封闭型变压器可设在同一房间内,具有IP3X防护等级外壳的配电柜和非油浸全封闭变压器可靠近布置在配电房内。
⑦配电室、变压器室、电容器室的门应向外开,相邻配电室有门时,该门应能双向开启或向低压室侧开启。
⑧油变,高压电容器柜和多油断路器柜等宜设置在高层建筑外的专用房间内,当条件受到限制必须设置在高层建筑或其裙房内时,可燃油油浸变压器总容量不应超过1260KVA,单台容量不应超过630KVA(变压器下应设有储存变压器全部油量的事故储油设施,并且其他各功能室应设置防止油品流散的设施)。

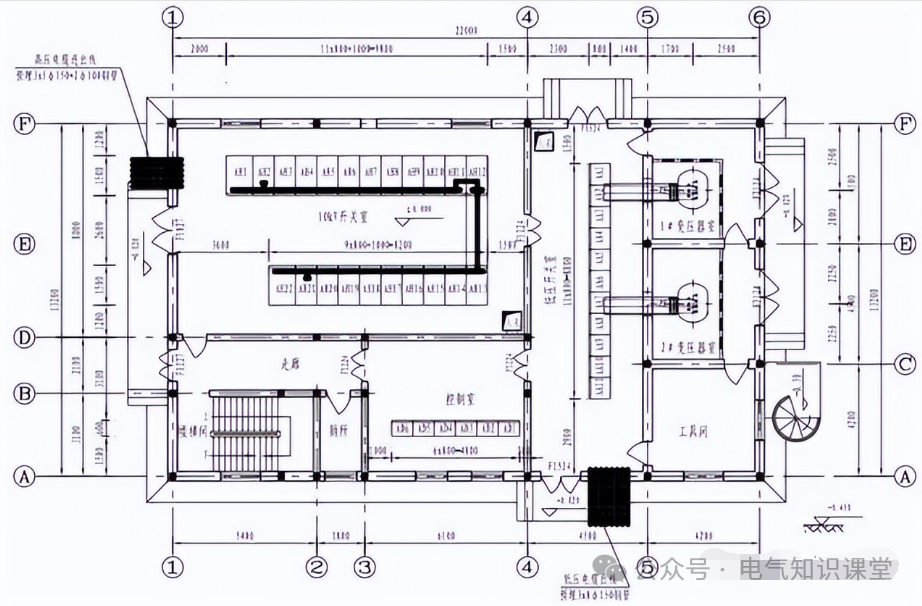
4)各配电室的布置
1>高压室
①带可燃性油的高压配电装置,宜装设单独配电室;10(6)kV高压开关柜数量为6台以下时,可与低压配电屏设同一房间。
②高压配电室宜预留开关柜备用位置。
③室内外配电装置的最小电气安全净距(括号内适用于室外),见下表:

④高压配电室内各种通道的宽度见下表,高压开关柜靠墙布置时,侧面离墙不应小于200mm,背面离墙不应小于50mm。

⑤长度大于7m设两个出口,并布置在两端,长度大于60m时,宜增添一个出口;配电装置的长度大于6m时,柜后通道应为两个出口。
⑥配电室裸带电部分上方不应布置灯具,必须布置时,水平净距应大于1m,不得采用吊链或软线。
2>低压室
①配电室长度超过7m,应设两个出口,并在两端,成排布置的低压配电屏超过6m时,屏后应设两个出口,两个出口间距超过15m时应增加出口。
②低压配电室内各种通道最小宽度见下表:


③低压配电室兼任值班室时,配电屏正面距墙不宜小于3m。
④ 低压配电室的高度应和变压器室综合考虑,一般与抬高地坪变压器室相邻时,其高度为4~4.5m;与不抬高地坪变压器室相邻时,高度为3.5~4m,配电室为电缆进线时,高度可以为3m。


因为国家标准是最低要求:结合我们所接触到的实际情况,通常如下考虑其距离:

3>变压器室
①变压器外壳与变压器墙壁和门的最小净距;

②多台干式变压器布置在同一房间内时,变压器防护外壳间的净距见下表:

③可燃性油浸变压器,应设置容量为 100%变压器油量的挡油设施,或设置容量为 20% 变压器油量的挡油池;
④变压器室的大门一般按变压器外形尺寸加0.5m。当一扇门的宽度为1.5m及以上时,应大门上开0.8m、1.8m的小门。

5)高低压母线桥架的做法
①单排开关柜中间断开时(因安全间距需要),或双排开关柜有母联时;变压器与进线柜间母排连接 ,一般用母线桥的方式
②注意母线桥的高度(底)应略高于开关柜安装后的高度,并且留出检修维护空间,
③母线桥比较适用于开关柜顶置母线,
④注意母线桥中母线的安装固定,须注意稳定方面,毕竟它是非标加工产品,不注意的话容易出质量问题;
⑤最后,对于抽出式开关柜,标准系列的框架配件有一定的机械强度限制,母线桥如果过重时,需要加强柜体支撑力,同时,母线桥也不宜过长,否则容易变形。(来源:电气设计圈)


