
配电房定义是:配电房又叫配电所,在国家标准里面,配电所的定义是:”所内只有起开闭和分配电能作用的高压配电装置,母线上无主变压器“。配电房电压等级在35KV等级以下,内部安装有开关、互感器、电容器以及相关的保护测量装置。通俗点说就是盖个房子,里面放有变压器、开关柜之类的,就成配电房(室)了,主要功能就是完成变压、分配电能的一个独立场所。住宅区域变配电所一般区分公用配电房和专用配电房;从权限来讲,专用配电房是由业主自主管理的,公用配电房属于移交给供电部门管理的;从负荷分配来讲,专用配电房所供的负荷主要是住宅区内的公共设施设备用电,如消防泵、生活泵、风机、电梯、公共照明等设备用电,公用配电房所供的负荷则主要是供居民生活用电,电费亦由供电部门直接收取。企业厂矿一般不区分公用和专用配电房,变配电所均由业主方自主管理维护,所有负荷均由内部配电房供电。
变配电所(配电房)规划布置,应严格执行国家标准和规范要求,比如《低压配电设计规范》GB 50054、《高压配电装置设计规范》DLT5352、《20KV及以下变电所设计规范》GB50053、《3-110kV高压配电装置设计规程》GB50060等,确定好配电房内所有配电装置的数量、位置以及安全距离后,即可规划出配电房的最小建筑平面尺寸。根据相关规范主要要求有如下:

变配电所室内的布置要求
▌1.高压开关柜靠墙布置时,侧面离墙不应小于200mm,背面离墙不应小于50mm。屋内配电装置采用金属封闭开关设备时,室内各种通道的最小宽度(净距)不宜小于下表的规定。
高压配电装置室内各种通道的最小宽度(净距)(mm)

以上是规范要求最小距离标准,实际应用时要综合考虑使用。比如:要考虑开关柜后开门大小,如35kV开关柜宽度为1400mm,如果单侧开门,则柜后要有1400的空间才能打开门。还要注意柜后电缆沟的大小,如35kV电缆沟最小宽度1200m,所以考虑加上电沟壁厚和柜后距离,至少需要1540mm。
▌2.低压配电室兼任值班室时,配电屏正面距墙不宜小于3m。低压配电室内各种通道最小宽度不宜小于下表规定。
低压成排布置的配电屏通道最小宽度(m)
▌3.设置于室内的无外壳干式变压器,其外廓与四周墙壁的净距不应小于600mm,干式变压器之间的距离不应小于 1000mm。对全封闭型干式变压器可不受上述距离的限制,但应满足巡视维护的要求。设置于室内的油浸变压器安全距离,应满足下表的规定。
室内油浸变压器外廓与变压器室四壁的最小净距(mm)

▌4.设置于室内的变压器,设计时需要了解其尺寸、重量、轨距及相关技术参数,下图示例仅供参考,实际应用前应向设备供应商咨询索取。
10kV级SCB14干式变压器规格参数表

10kV级S11油浸变压器规格参数表

▌5.变压器低压一次系统主母线截面选择,根据不同的规范手册,其取值是不同的,设计人员应根据实际应用综合考虑选择。
变压器容量与总开规格、互感器、母线槽、母线规格载流量、电缆规格的选择配合表一(摘自19DX101-1)

变压器容量与总开规格、互感器、母线槽、母线规格载流量、电缆规格的选择配合表二(摘自99D201-1)

▌6.高低压电缆截面选择,设计人员应根据实际应用综合考虑选择。
10kV三芯交联聚乙烯绝缘电缆持续允许载流量表一
(摘自GB50217-2018)


0.6/1kV三芯交联聚乙烯绝缘电缆持续允许载流量表二
(摘自19DX101-1)


▌7.框架断路器(ACB)和塑壳断路器(MCCB)是配电装置内主要的电气元器件,应准确掌握其安装尺寸、规格大小、壳体电流、额定电流、分断能力等要素,下述两个表格分别列出框架断路器(ACB)和塑壳断路器(MCCB)的相关要素,供设计人员应用时选择使用。
框架断路器(ACB)技术参数表
(摘自19DX101-1)

塑壳断路器(MCCB)技术参数表
(摘自19DX101-1)

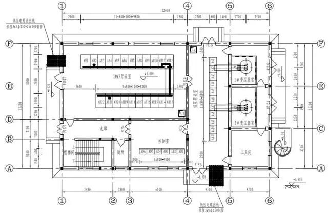
变配电所的规划选择与布局要求
1.布置紧凑合理,便于设备的操作、搬运、检修、试验和巡视,还要考虑发展的可能性。适当安排建筑物内各房间的相对位置,使配电室的位置便于进出线。尽量利用自然采光和自然通风,变压器室和电容器室尽量避免西晒,控制室尽可能朝南。变配电所位置的选择,应符合接近用电负荷中心;应方便进出线和设备吊装运输;不应设在厕所、浴室或其他经常积水场所的正下方,且不宜与上述场所相贴邻;装有可燃油电气设备的变配电室,不应设在人员密集场所的正上方、正下方、贴邻和疏散出口的两旁;当配变电所的正上方、正下方为住宅、客房、办公室等场所时,配变电所应作屏蔽处理。
2.配电室、控制室、值班室等的地面宜高出室外地面150~300mm,当附设于车间内时,则可与车间的地面相平。高压配电室宜设不能开启的距室外地坪不低于1.8m的自然采光窗,低压配电室可设能开启的不临街的自然采光窗。配电室裸带电部分上方不应布置灯具,必须布置时,水平净距应大于1m,不得采用吊链或软线。配电装置的门和变压器室的门的高度和宽度,宜按最大不可拆卸部件尺寸,高度加0.5m,宽度增加0.3m确定,其疏散通道门的最小高度宜为2m、最小宽度宜为0.75m。单独变压器室的大门一般按变压器外形尺寸加0.5m。当一扇门的宽度为1.5m及以上时,应在大门上开0.8m*1.8m的小门。对于就地检修的室内油浸变压器,室内高度可按吊芯所需的最小高度再加 700mm,宽度可按变压器两侧各加800mm确定。一般情况下,每个配电室至少设有两个出入门,其中运输设备门宽不小于1800mm,门高不低于2700mm。
3.一般10kV配变电所宜单层布置,当采用双层布置时,变压器室应设在底层,并且二层的配电室需留有吊装设备的吊装孔、吊装平台等。不带可燃性油的高、低压配电装置和非油浸的全封闭型变压器可设在同一房间内,配电房内具有IP3X防护等级外壳的配电柜和非油浸全封闭变压器可靠近布置。油变、高压电容器柜和多油断路器柜等宜设置在高层建筑之外的专用房间内;当条件受到限制必须设置在高层建筑或其裙房内时,可燃油油浸变压器总容量不应超过1260KVA,单台容量不应超过630KVA(变压器下应设有储存变压器全部油量的事故储油设施,并且其他各功能室应设置防止油品流散的设施)。
4.配电室、变压器室、电容器室的门应向外开;相邻配电室有门时,该门应能双向开启或向低压室侧开启。安装可燃油油浸电力变压器总容量不超过1260kVA、单台容量不超过630kVA的变配电室可布置在建筑主体内首层或地下一层靠外墙部位,并应设直接对外的安全出口,变压器室的门应为甲级防火门;外墙开口部位上方,应设置宽度不小于1m不燃烧体的防火挑檐。 可燃油油浸电力变压器室的耐火等级应为一级,高压配电室的耐火等级不应低于二级,低压配电室的耐火等级不应低于三级,屋顶承重构件的耐火等级不应低于二级。
5. 变压器室、配电室等应设置防雨雪和小动物从采光窗、通风窗、门、电缆沟等进入室内的设施。变配电室的电缆夹层、电缆沟和电缆室应采取防水、排水措施。变配电室不应有与其无关的管道和线路通过。变配电室、控制室、楼层配电室宜做等电位联结。变配电室重地应设与外界联络的通信接口,并宜设出入口控制。由同一变配电所供给一级负荷用电时,母线分段处应设防火隔板或有门洞的隔墙。供给一级负荷用电的两路电缆不应通过同一电缆沟;当无法分开时,该电缆沟内的两路电缆应采用阻燃性电缆,且应分别敷设在电缆沟两侧的支架上。
6.室内变电所的每台油量为100kg 及以上的电力变压器,应设在单独的变压器室内。各室经常开启的门、窗不宜直接朝向相邻有腐蚀性气体、粉尘和噪声的场所。带可燃性油的高压配电装置,宜装设单独配电室;10(6)kV高压开关柜数量为6台以下时,可与低压配电屏设同一房间。高压配电室宜预留备用开关柜。高、低压配电室及变压器室应适当留有备用间隔扩容的余地。高、低压配电室内宜留有适当数量开关柜(屏)的备用位置,变压器的外形轮廓宜按比其容量大一级考虑。
7.高压配电室长度大于7m应设两个出口,并布置在两端,长度大于60m时,宜增添一个出口。高压成套设备成排布置的高压配电屏长度大于6m时,柜后通道应为两个出口。配电装置室内任一点到房间疏散门的直线距离不应大于15m,相邻安全出口之间的距离不小于40m。长度大于60m的配电装置室,宜设置3个出口;当配电装置室有楼层时,一个出口可设置在通往屋外楼梯的平台处。
8.低压配电室的高度应和变压器室和上进上出的电缆桥架层数综合考虑。一般与抬高地坪变压器室相邻时,其高度为4~4.5m;与不抬高地坪变压器室相邻时,高度为3.5~4m;配电室为电缆进线时,高度可以为3m;但是同时又要求:屋内配电装置距顶板的距离不宜小于1.0米,当有梁时,距梁底不宜小于0.8米。低压成套设备成排布置的低压配电屏超过6m时,屏后应设两个出口,两个出口间距超过15m时应增加出口。当配电室双层布置时,楼上配电室的出口应至少设一个通向该层走廊或室外的安全出口。配电室的门均应向外开启,但通向高压配电室的门应为双向开启门。主控制楼、屋内配电装置楼各层及电缆夹层的安全出口不应少于2个,其中1个安全出口可通往室外楼梯。配电装置室内任一点到房间疏散门的直线距离不应大于15m 。
9.总油量超过100kg的屋内油浸电力变压器,应安装在单独的变压器间内,并应设置灭火设施。屋内单台电气设备的油量在100kg以上时或者屋外单台电气设备的油量在 1000kg 以上时,应设置油设施或挡油设施。挡油设施的容积应按容纳20%油量设计,并应有将事故油排至安全处的设施;当不能满足上述要求时,应设置能容纳100%油量的贮油设施。贮油和挡油设施应大于设备外廓每边各1000mm,四周应高出地面 100mm。设施内应铺设卵石层,卵石层厚度不应小于250mm;卵石直径为50~80mm。当设置有油水分离措施的总事故贮油池时,贮油和挡油设施容量宜按最大一个油箱容量的60%确定。
10.配电装置(电气设备/开关柜/配电柜)布置,前后、通道,如下图图示示例:

11.成排布置的配电屏开关柜,其长度超过6m时,屏后的通道应设2个出口、并宜布置在通道的两端。当两出口之间的距离超过15m时,其间尚应增加出口,如下图示:

12.落地式配电屏开关柜的底部应抬高,高出地面的高度室内不应低于50mm,室外不应低于200mm;其底座周围应取封闭措施,并能防止鼠、蛇类等小动物进入箱内。如下图示:

13.根据《 国家电网有限公司关于印发十八项电网重大反事故措施》2018版要求:新建变电站的站用变压器、接地变压器不应布置在开关柜内或紧靠开关柜布置,避免其故障时影响开关柜运行。
14.单排开关柜中间断开时(因安全间距或场地限制等需要),或双排开关柜有母联时,以及变压器与进线柜之间,一般宜采用母线桥的方式连接。如下图示:

上图可见:注意母线桥的高度(底)应略高于开关柜安装后的高度,并且留出检修维护空间。注意母线桥中母线的安装固定,母线桥也不宜过长,否则容易变形。
15.要求建筑设计单位按照室内最大配电装置计算荷载进行加固和加强配电房结构等相关设计,并予以核验,一般情况下高低压柜可按每面1400kg荷载考虑,变压器可按每台按3000kg荷载考虑。配电房门窗结合现场实际情况按相关规范和设计要求预留,所有门窗应满足防火规范宜须同时符合消防要求。对外开启的窗户下沿距室外地坪高度不小于1.8米,且所有可开启的窗户均应加装防盗网和网格眼大小满足防飞虫及小动物进入的不锈钢丝网。配电房周围应保留有独立的检修与消防通道,方便以后检修时设备进出,发生火灾时人员快速疏散。
16.配电室门上挂“止步,高压危险”明显的标示牌。高低压柜体正面需附电气接线图。配电房内墙壁醒目位置应有电气一次模拟接线屏(板)及电气相关安全规程制度。
17.门内侧应设置活动挡板,挡板高度为0.6m。配电房内不应有与其无关的管道和线路通过。室内宜设置墙面隔音装置,变压器基础应设置减震降噪装置。室内墙及顶棚表面均应抹灰刷自,且应采用防水隔层处理。地面宜采用环氧树脂地面。电缆沟设沟盖板,盖板表面与室内地面齐平。
18.所有电力线路、设备均应符合安全用电全绝缘化要求。配电房内应安装照明及事故应急照明,照度应满足巡视、检修要求。按照防火规范要求,应急照明的照度应能满足正常照明的照度,同时事故应急照明应能满足事故放电至少1小时,且事故照明灯具应选用带防爆灯罩的灯具。应急照明充电回路与照明控制回路应分别控制。
19.配电房内应满足通风散热和除湿防潮要求。夏季的排风温度不宜高于45摄氏度,进风和排风的温差不宜大于15摄氏度。配电房宜具备自然通风的条件,保持屋内空气流畅。自然通风设施,宜设在高(低)压配电柜排列后方对应墙体的踢脚线上、天花板下各对应安装不小于1000mmX600mm的百叶窗,内置3mmX3mm孔钢丝网。当自然通风不能满足排热要求时,应设人工通风装置。
20.电缆穿越竖井、隧道、电缆沟接口处或盘柜孔洞及管道两端时,应用防火堵料封堵。防火封堵材料应密实无气孔,且厚度不小于100mm。电缆从室外进入室内入口处在2米范围内涂A60-1改性氨基膨胀防火涂料。所有开关柜安装完毕投运前,应采用自流平技术实行防火封堵。高低压开关柜操作面前应布置绝缘垫,绝缘等级符合相应电压等级安全要求,绝缘垫宽度不应低于1000mm。所有设备全绝缘化安装。
21.配电房安装完成后,应按变配电所设计规范和国家相关消防要求,对本配电室进行消防配置。绝缘靴、绝缘棒、绝缘手套、验电器等安全工器具,按相关规范要求配置。每台变压器应至少配置2瓶干粉灭火器或二氧化碳灭火器,在靠近大门处分散放置。


