机电天下 电气 配电房布置指南:高压室、低压室、变压器室及变配电所规划

配电房布置指南:高压室、低压室、变压器室及变配电所规划

配电房在供电系统中占据着核心位置,是我们日常所说的变配电所和配电室的总称。其中,35KV变配电所涵盖了35/10(6)kV变电所以及35/0.38kV变电所。而10(6)kV配电所,有时也被称为开闭所,在用户单位内部往往还配备有10(6)kV变电所。至于10(6)kV变电所,它特指高压侧电压达到10(6)kV的变电设施,在工业领域常被称作车间变电所,通常由变压器、高压室以及低压室等多个部分组成。

 

 

01

变配电所选址

 

 

 

1.应尽可能靠近负荷中心布局,以减少配电系统在电能传输过程中的损耗、电压降落以及有色金属的使用量;

 

2.确保进出通道畅通无阻,特别是要便于架空线路的引入和引出;

 

3.宜靠近电源端设置,尤其是针对工厂的总降压变电所及高压配电所而言。

 

4.设备运输方便,特别是要考虑电力变压器和高低压成套配电装置的运输;

 

5.不应设在有剧烈振动或高温的场所,当无法避开时,应有防震和隔热的措施;

 

6.不宜设在多尘或有腐蚀性气体的场所,无法远离时,不应设在污染源的下风侧;

 

7.不应设在厕所、浴室和其他经常积水场所的正下方,且不宜与上述场所相贴邻;

 

8.其位置应避免直接位于具有爆炸危险环境的上方或下方,同样,也不适宜处于存在火灾危险环境的正上方或正下方。

 

9.配电所不应建立在地势低洼或存在积水风险的地点。

 

10.配电所通常是独立的建筑物,但也可以与所服务的10(6)KV变电所相结合,共同设置在负荷较大的厂房或建筑物内部。

 

 

02

变配电所的布置

 

 

 

1.布局应紧凑且合理,以便于设备的日常操作、搬运、维护检修、性能测试及巡视检查,并预留未来发展的空间。

 

2.合理规划建筑物内部各房间的相对布局,确保配电室的位置能够便捷地进行线路的接入与引出。

 

3.充分利用自然光源与自然通风条件,变压器室与电容器室应尽量避免西向阳光直射,而控制室则应尽可能朝向南方。

 

4.配电室、控制室、值班室等的地面宜高出室外地面150~300mm,当附设于车间内时,则可与车间的地面相平。

 

5.10kV配变电所宜单层布置,当采用双层布置时,变压器室应设在底层,并且二层的配电室需留有吊装设备的吊装孔,吊装平台等。

 

6.不带可燃性油的高、低压配电装置和非油浸的全封闭型变压器可设在同一房间内,具有IP3X防护等级外壳的配电柜和非油浸全封闭变压器可靠近布置在配电房内。

 

7.配电室、变压器室、电容器室的门应向外开,相邻配电室有门时,该门应能双向开启或向低压室侧开启。

 

8.油变,高压电容器柜和多油断路器柜等宜设置在高层建筑外的专用房间内,当条件受到限制必须设置在高层建筑或其裙房内时,可燃油油浸变压器总容量不应超过1260KVA,单台容量不应超过630KVA(变压器下应设有储存变压器全部油量的事故储油设施,并且其他各功能室应设置防止油品流散的设施)。

 

 

 

03

各配电室的布置

 

 

1

1>高压室

 

1.带可燃性油的高压配电装置,宜装设单独配电室;10(6)kV高压开关柜数量为6台以下时,可与低压配电屏设同一房间。

 

2.高压配电室宜预留开关柜备用位置。

 

3.室内外配电装置的最小电气安全净距(括号内适用于室外),见下表:

 

 

4.在高压配电室内,各种通道的宽度请参照下表。当高压开关柜靠墙布置时,其侧面与墙壁的距离应不小于200毫米,背面与墙壁的距离则不应小于50毫米。

 

 

5.若配电室的长度超过7米,应设置两个出口,并分别布置在两端。当长度达到或超过60米时,建议增加一个额外的出口。此外,当配电装置的长度超过6米时,柜后的通道也应设有两个出口。

 

6.在配电室内,裸带电部分的上方不应安装灯具。如果确实需要布置灯具,其与裸带电部分的水平净距离应大于1米,并且严禁使用吊链或软线进行悬挂。

 

2

2>低压室

 

1.配电室长度超过7m,应设两个出口,并在两端,成排布置的低压配电屏超过6m时,屏后应设两个出口,两个出口间距超过15m时应增加出口。

 

2.低压配电室内各种通道最小宽度见下表:

 

 

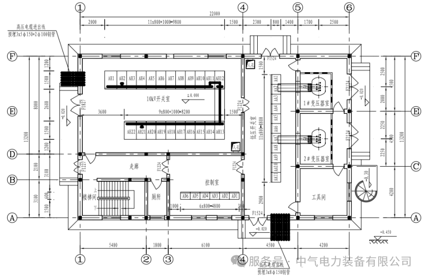
配电房布置示意图

 

3.当低压配电室同时作为值班室使用时,配电屏的正面与墙壁之间的距离最好不要小于3米。

 

4.低压配电室的高度应与变压器室进行综合考虑。一般来说,如果配电室与抬高地坪的变压器室相邻,其高度应设定为4至4.5米;如果与未抬高地坪的变压器室相邻,高度则应为3.5至4米。当配电室采用电缆进线时,其高度可以降低到3米。

 

 

因为国家标准是最低要求:结合我们所接触到的实际情况,通常如下考虑其距离:

 

固定柜无论单排,双排放置时:柜后离墙1m,柜前离墙≥2.0m

抽屉柜无论单排,双排放置时:柜后离墙1m,柜前离墙(柜间)≥2.5m

 

3

3>变压器室

 

1.变压器外壳与变压器墙壁和门的最小净距;

 

 

2.多台干式变压器布置在同一房间内时,变压器防护外壳间的净距见下表:

 

 

3.对于可燃性油浸变压器,应当设置能够容纳变压器100%油量的挡油设施,或者设置至少能容纳20%变压器油量的挡油池。

 

4.变压器室的大门尺寸通常是根据变压器的外形尺寸增加0.5米来设计的。如果一扇门的宽度达到或超过1.5米,那么这扇门上应当开设一扇0.8米或1.8米宽的小门,以便于日常操作和紧急情况下的快速疏散。

 

 

 

04

高低压母线桥架的做法

 

 

1.当单排开关柜因安全间距需要而中间断开,或双排开关柜配备有母联时,变压器与进线柜之间的母排连接通常会采用母线桥的方式。

 

2.在设计和安装母线桥时,需要注意其高度(底部)应略高于开关柜安装完成后的高度,并确保留有足够的检修和维护空间。

 

3.母线桥更适用于那些开关柜顶部设有母线的场合。

 

4.在安装母线桥时,母线的固定方式至关重要,必须确保其稳定性。由于母线桥属于非标加工产品,如果不加以注意,很容易出现质量问题。

 

5.最后,对于抽出式开关柜而言,标准系列的框架配件具有一定的机械强度限制。如果母线桥过重,可能需要加强柜体的支撑力。同时,母线桥的长度也不宜过长,以免发生变形。

 

本文来自网络,不代表机电天下立场,转载请注明出处:https://mepbbs.com/archives/15326
上一篇
下一篇

发表回复

您的电子邮箱地址不会被公开。 必填项已用 * 标注

联系我们

联系我们

15515572238

在线咨询: QQ交谈

邮箱: 328758160@qq.com

工作时间:周一至周五,9:00-17:30,节假日休息

关注微信
微信扫一扫关注我们

微信扫一扫关注我们

返回顶部
首页
机电课程
永久会员
资料精选
搜索